Продається 4-кімнатна квартира
Одеса, р-н Київський, Вильямса Академика ул., 87
ID: 5286940
2 716 840 грн
(27 006 за м2)
Кіл-ть кімнат
4
Поверх
8/12
Тип стін
цегла
Загальна площа
100.6 м2
Житлова площа
55.3 м2
Площа кухні
7 м2
Стан
житлове
Тип нерухомості
Вторинний ринок
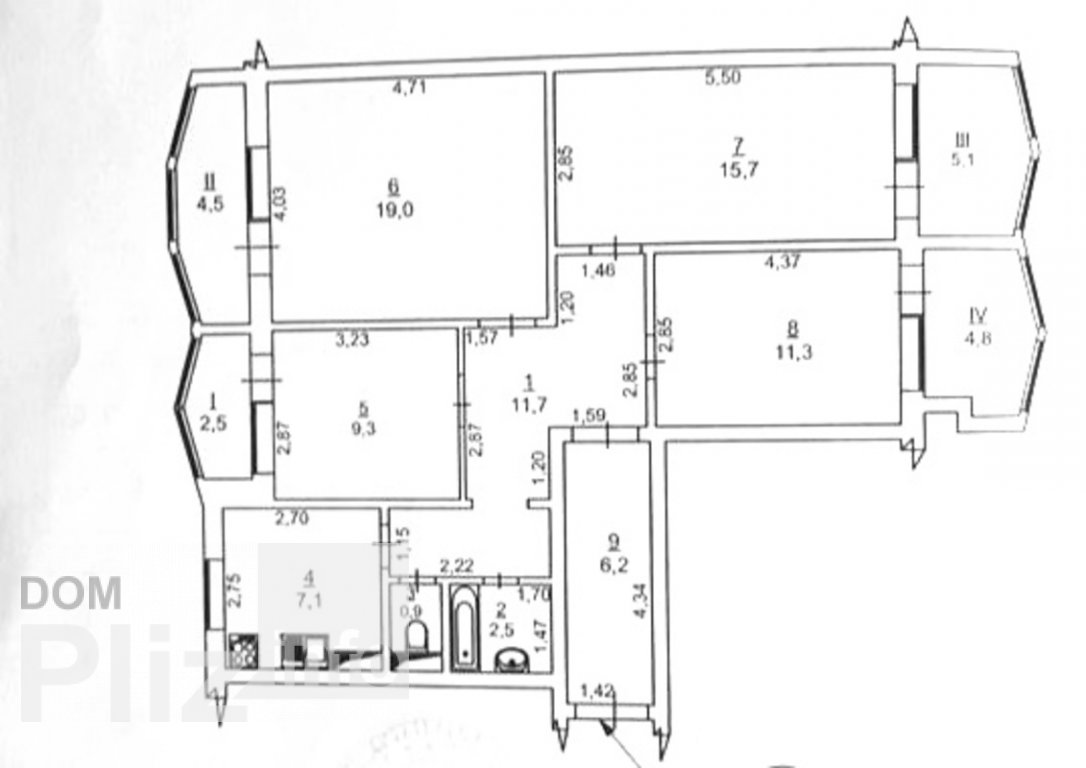
Продажа 4 комнатной квартиры на Таирова, раздельные хода, гостиная 19 кв.м. + 3 спальни: 15,7 + 11,3 + 9,3. Лоджия из каждой комнаты. В комнатах наборной паркет, столярка дерево / лак. Рядом детский сад, школа № 86, супермаркет.
Оновлене: 19.03.2026
2 716 840 грн
(27 006 за м2)
62 000 $
(616 за м2)
БЕСТТ НЕДВИЖИМОСТЬ
посередник
Оновлене: 19.03.2026
Переглянуті
Продам четырехкомнатную квартиру на ул. Ильфа и Петрова. 3 этаж 12-этажного дома, кооперативный дом. Общий метраж - 110 кв. метров, жилая - 55 кв. метров, кухня - 8 кв. метров. Современный капитальный ремонт. Ч...
23.03.2026
Кімнат
4
Поверх:
3/12
Загальна
110 м2
Житлова
55 м2
Кухня
8 м2
3 286 500 грн
Продается шикарная квартира сотовый проект с видом на море! Общая площадь 99 кв.м., жилая площадь 65 кв.м., кухня 20 кв.м. Квартира с евроремонтом, перепланированная. Лоджия раскрыта и застеклена. Санузел совме...
23.03.2026
Кімнат
4
Поверх:
16/16
Загальна
99 м2
Житлова
65 м2
Кухня
20 м2
3 943 800 грн
Предлагается к продаже 2-х уровневая квартира, расположена на 5-ом этаже. Общая площадь 110 кв.м. Первый этаж: кухня-студия, санузел, прихожая, гардероб, лоджия. Второй этаж: три спальни, санузел, балкон. Тёплы...
23.03.2026
Кімнат
4
Поверх:
5/6
Загальна
110 м2
Житлова
61.4 м2
Кухня
50 м2
3 286 500 грн
Продается 4-комнатная квартира на Ак.Уильямса. Общая площадь 94 м2, жилая 64,5 м2, кухня 7,5 м2. Средний 8 этаж, 16-этажки, на этаже тамбур, в квартире интернет, бойлер, санузел оборудован. Квартира в жилом сос...
23.03.2026
Кімнат
4
Поверх:
8/16
Загальна
94 м2
Житлова
64.5 м2
Кухня
7.5 м2
2 760 660 грн
Популярне на сайті

ОдесаОдеса

КиївКиїв











