Продається 4-кімнатна квартира
Одеса, р-н Київський, Глушко Академика пр.
ID: 5287010
3 237 713 грн
(36 792 за м2)
Кіл-ть кімнат
4
Поверх
13/16
Тип стін
цегла
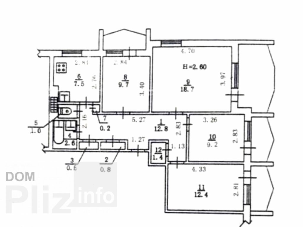
Загальна площа
88 м2
Житлова площа
50 м2
Площа кухні
8 м2
Стан
житлове
Тип нерухомості
Вторинний ринок
Продаж 4-кімнатної квартири. Цетр Таїрова. Проспект Ак. Глушко / Ринок Південний. 13/16. 88 кв.м., з кожної кімнати лоджія. Капремонт, утеплена з фасаду, металопластикові вікна. Повністю укомплектована всім необхідним для життя: вбудована кухня, спальня, вітальня, шафи, посудомийка, кондиціонери, відеодомофон, телевізори, вбудований холодильник side-by-side, пральна машина, камін. Великий тамбур, тихі сусіди, 2 ліфти (вантажний та пасажирський). Відмінне розташування будинку. Поруч бювет, супермаркет, ринок, дитячий садок, школа, ТРЦ Панорама, кінотеатр Золотий Дюк, Південний та Київський ринки. 20 хвилин пішки до моря/13 станція Великого Фонтану. Транспорт у будь-яку точку міста. Посередникам прохання не дзвонити. Продажа 4х-комнатной квартиры. Цетр Таирова. Проспект Ак. Глушко / Рынок Южный. 13/16. 88 кв.м.,из каждой комнаты лоджия. Капремонт, утеплена с фасада, металопластиковые окна. Полностью укомплектована всем необходимым для жизни: встроенная кухня, спальня, гостиная, шкафы, посудомойка, кондиционеры, видеодомофон, телевизоры, встроенный холодильник side-by-side, стиральная машина, камин. Большой тамбур, тихие соседи, 2 лифта (грузовой и пассажирский). Отличное расположение дома. Рядом бювет, супермаркет, рынок, детский сад, школа, ТРЦ Панорама, кинотеатр Золотой Дюк, Южный и Киевский рынки. 20 минут пешком к морю / 13 станция Большого Фонтана. Транспорт в любую точку города. Посредникам просьба не звонить.
Створено : 05.02.2026
3 237 713 грн
(36 792 за м2)
75 000 $
(852 за м2)
БЕСТТ НЕДВИЖИМОСТЬ
посередник
Створено : 05.02.2026
Переглянуті
Продаж 4-кімнатної квартири в цегляному будинку. Ільфа та Петрова. Свіжий капремонт, все нове, вбудована кухня, техніка. Кухню збільшено за рахунок лоджії. Вітальня, 3 спальні. Підігрів підлоги, нові труби, сен...
05.02.2026
Кімнат
4
Поверх:
8/10
Загальна
88 м2
Житлова
51 м2
Кухня
14 м2
2 806 018 грн
Квартира в житловому стані,кімнати роздільні, санвузол роздільний.Вікна деревяні.Будинок знаходиться всередині двору. не далеко від ринку Південний. 2-й. поверх, 9-ти поверхового будинку. Є 2 засклені лоджії і ...
05.02.2026
Кімнат
4
Поверх:
2/9
Загальна
81 м2
Житлова
50 м2
Кухня
10 м2
1 856 289 грн
Продаж 4 кімнатної квартири на Таїрова. Академіка Корольова / Обл. ДАІ. Цегла, спецпроект. Переплановано на кухню студію 38,1 кв.м. + 3 спальні. Капремонт із заміною труб та електропроводки, біметалічні радіато...
05.02.2026
Кімнат
4
Поверх:
8/10
Загальна
90 м2
Житлова
40 м2
Кухня
38.1 м2
3 842 086 грн
Продам 4-комнатную в Сотовом проекте на Маршала Жукова (Проспект Небесной Сотни) / Левитана, 2/16, раздельные хода, 4 лоджии. Отличное расположение дома, рядом школа, детская поликлиника, супермаркет, транспорт...
05.02.2026
Кімнат
4
Поверх:
2/16
Загальна
85 м2
Житлова
55 м2
Кухня
8 м2
2 050 551 грн
Популярне на сайті

ОдесаОдеса

КиївКиїв



























