Продається офісне приміщення
Одеса, р-н Київський, Костанди ул.
ID: 5287067
4 012 345 грн
(40 901 за м2)
Поверх
1/14
Тип стін
цегла
Загальна площа
98.1 м2
Стан
житлове
Тип нерухомості
Офісне приміщення
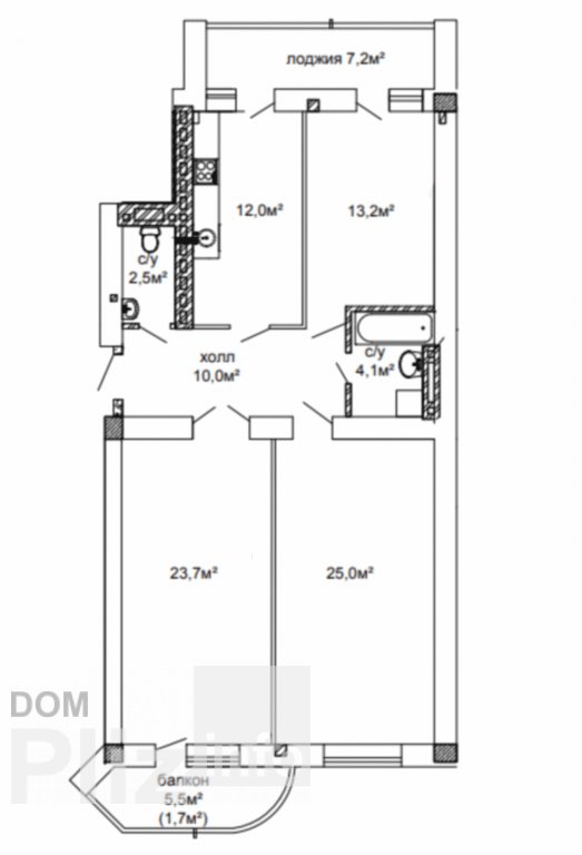
Продаж нежитлового приміщення. Центр Таїрова. Кастанді/АК. Корольова, ЖК Вернисаж.1/14, цегляний будинок, 74 кв.м., 4 кімнати: 25 кв.м., та 23,7 кв.м.,, можна обєднати, 13,2 кв.м., та 12 кв.м. також є можливість обєднати, 2 санвузли, хол 10 кв.м. Висота приміщень 3 метри. Фасад 2 вікна. Ідеально під стоматологію, магазин, аптеку, салон краси, офіс. ОСББ. Продажа нежилого помещения. Центр Таирова. Кастанди / АК. Королева, ЖК Вернисаж.1/14, кирпичный дом, 74 кв.м., 4 комнаты: 25 кв.м., и 23,7 кв.м.,, можно объединить, 13,2 кв.м.,и 12 кв.м. также есть возможность объединить, 2 санузла, холл 10 кв.м.. Высота помещений 3 метра. Фасад 2 окна. Идеально под стоматологию, магазин, аптеку, салон красоты, офис. ОСМД.
Оновлене: 19.04.2026
4 012 345 грн
(40 901 за м2)
91 250 $
(930 за м2)
БЕСТТ НЕДВИЖИМОСТЬ
посередник
Оновлене: 19.04.2026
Переглянуті
31675 Продам Коммерческое помещение в Радужном!Коммерция дворовая, удобна под любой вид деятельности, двух уравнивая при всходе большой ресепшн, на первом уровне большой зал, и маленькое подсобное помещение, на...
21.04.2026
Поверх:
1
Загальна
98 м2
5 276 508 грн
В продаже помещение в оживлённом районе, в новом жилом доме, цокольный этаж, общей площадью 92 м2. Можно использовать под офис, салон, спортивный зал и другое. Отдельный вход, все коммуникации. Сейчас клуб един...
12.05.2026
Поверх:
1/15
Загальна
92 м2
3 297 818 грн
В продажу поступила коммерческое помещение в 9 этажном доме в Киевском районе полуцоколь. Общая площадь 92 кв.м. Нежилой фонд. Состояние под ремонт. Возможно использование под любой вид деятельности, парикмахер...
12.05.2026
Поверх:
1/9
Загальна
92.4 м2
1 253 171 грн
Продается помещение под магазин или офис. Площадь 75 метров. Большое торговое помещение (ранее был магазин). Есть санузел. Выполнен ремонт. Электроотопление, стены окрашены. на полу плитка. В помещении нескольк...
12.05.2026
Поверх:
1/16
Загальна
92 м2
Житлова
50 м2
3 297 818 грн
Популярне на сайті

ОдесаОдеса

КиївКиїв










