Здам довгостроково офісне приміщення
Київ, р-н Солом'янський, Ушинського, 40
ID: 5287087
250 грн
Поверх
6/14
Тип стін
цегла
Загальна площа
1500 м2
Стан
житлове
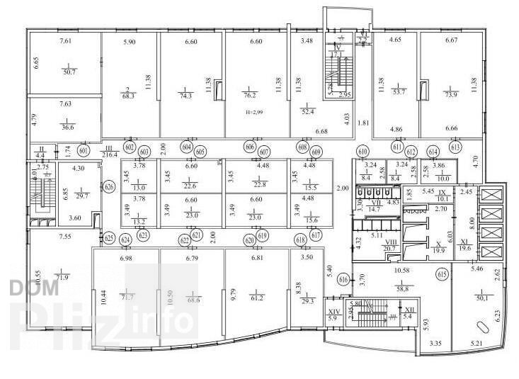
Оренда офісного поверху площею 1400 м2. Офіс з ремонтом, розташований в сучасному БЦ. Поверх: 9, генератор на ліфт під час відключення світла. Розвинена інфраструктура: територія під цілодобовою посиленою охороною, відеоспостереження, доступ 24/7, автономна система опалення, наземний паркінг для автомобілів, електромобілів та велосипедів, оренда на території електросамокатів та велосипедів, відділення Нової пошти на території, 8 провайдерів телефонії та інтернету, кафе та кавярня, студія фітнесу та танців, банкомат Приватбанк, поштомат Нова пошта, конференц-зали, переговорні кімнати. Безплатний трансфер до метро Шулявська та Деміївська 6 разів на день. В БЦ працюють більш ніж 200 компаній зі сфери рітейлу, виробництва та послуг. Є варіанти оренди інших площ. Вартість оренди: 250 грн./м2 + експлуатація та комунальні послуги. Пропозиція без комісії.
Створено : 05.02.2026
250 грн
6 $
Віктор
посередник
Створено : 05.02.2026
Переглянуті
Оренда офісного блоку площею 1500 м2 (поверх) в сучасному БЦ, поряд з Севастопольскою площею. 9-й поверх. Кабінетна система, можливо перепланування. Два ліфта працюють при відключенні електрики.. Вартість оренд...
05.02.2026
Поверх:
9
Загальна
1500 м2
220 грн
Аренда видового офиса в новом Бизнес Центре класса " А + " по адресу улица Соломенская. Этаж 3/5 этажного нежилого здания. Полезная площадь офиса 1 264.60 м2. Арендуемая площадь 1 548.14 м2 ( 22 % коэффициент B...
05.02.2026
Поверх:
3/5
Загальна
1500 м2
1 079 238 грн
Аренда просторного офиса в Бизнес Центре класса " В + " по адресу улица Полевая. Этаж 3/9 этажного нежилого здания. Полезная площадь офиса 1 343 м2. Арендуемая площадь 1 477 м2 ( 10 % коэффициент BOMA ). Фотогр...
05.02.2026
Поверх:
3/9
Загальна
1500 м2
766 259 грн
Популярне на сайті

ОдесаОдеса

КиївКиїв














