Здам довгостроково офісне приміщення
Київ, р-н Подільський, Воздвиженська
ID: 5287107
550 грн
Поверх
5/7
Тип стін
цегла
Загальна площа
205 м2
Стан
житлове
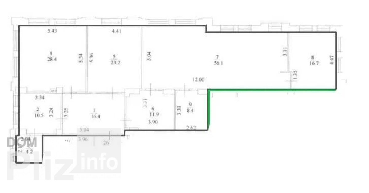
Оренда офісу 205 м2, в історичному центрі Подолу, вул. Воздвиженська. 5 поверх, офіс з ремонтом. Планування - open-space+кухня+3 кабінети+meeting room. Площа -175.3 м2, з коефіцієнтом загальних площ (1,17) - 205.1 м2. Є підземний паркінг для укриття під час тривог. Генератор. Орендна ставка - 550 грн/м2 з ПДВ експлуатаційні - 100 грн/м2 з ПДВ + комунальні по лічильникам. Без комісії для орендарів.
Створено : 05.02.2026
550 грн
13 $
Віктор
посередник
Створено : 05.02.2026
Переглянуті
Оренда, Офіс 205 м2, Воздвиженка, Контрактова, Поділ. Вільне комерційне приміщення по вул. Воздвиженська, бізнес-центр. 5 поверх, з ремонтом, приміщення пропонується БЕЗ МЕБЛІВ. Планування - open-space+кухня+3 ...
05.02.2026
Поверх:
5/7
Загальна
205 м2
143 500 грн
Аренда современного офиса в новом Бизнес Центре класса " В + " по адресу проспект Степана Бандеры. Этаж 8/8 этажного нежилого здания. Полезная площадь офиса 189.09 м2. Арендуемая площадь 208 м2 ( 10 % коэффицие...
05.02.2026
Поверх:
8/8
Загальна
200 м2
172 678 грн
Аренда просторного офиса в центре Киева в Бизнес Центре класса " В + " по адресу улица Ильинская. Этаж 6/6 этажного нежилого здания. Полезная площадь офиса 172.3 м2. Арендуемая площадь 198.15 м2 ( 15 % коэффици...
05.02.2026
Поверх:
6/6
Загальна
200 м2
155 410 грн
БЕЗ КОМИССИИ!!! Аренда офиса 200 м2 в бизнес центре класса "В" по ул. Межигорская (Подольский район). Офис расположен на 4-этаже и имеет смешанную планировку (Open Space, 4 кабинета, помещение под мини кухню, 3...
11.02.2022
Поверх:
4/4
Загальна
200 м2
85 600 грн
Популярне на сайті

ОдесаОдеса

КиївКиїв













