Здам довгостроково офісне приміщення
Київ, р-н Подільський, Воздвиженська
ID: 5287108
202 800 грн
Поверх
6/7
Тип стін
цегла
Загальна площа
312 м2
Стан
житлове
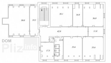
Оренда офісу 312 кв.м, на Подолі вул. Воздвиженська. 6 поверх, з ремонтом, без меблів. 1 орендар на поверсі. Планування - 2 зони опенспейс + 3 кабінети, 2 переговорні + кухня + санвузол + серверна. Приточно-витяжна система вентиляції. Площа - 260 м2, з коефіцієнтом загальних площ (1,2) - 312 м2. Є підземний паркінг для укриття під час тривог. Генератор. Орендна ставка - 550 грнu/м2 з ПДВ, експлуатаційні - 100 грн/м2 з ПДВ + комунальні по лічильникам. Доступ та охорона 24/7. Без комісії.
Створено : 05.02.2026
202 800 грн
4 698 $
Віктор
посередник
Створено : 05.02.2026
Переглянуті
Оренда о фісного блоку площею 312 кв.м, вул. Воздвиженська Вільне комерційне приміщення 6 поверх, з ремонтом, без меблів. 1 орендар на поверсі. Планування - 2 зони опенспейс + 2 кабінети, переговорні + кухня +...
05.02.2026
Поверх:
6/7
Загальна
312 м2
218 400 грн
316м2 приміщення в оренду. Поділ. Є генератор, метро Тараса Шевченка, три хвилини пішки, паркування, можливість реєстрації юр.адреси, нежитловий фонд. Орендна ставка – 284 грн./м2. Сервісні послуги - 42 грн./м2...
05.02.2026
Поверх:
4/5
Загальна
316 м2
89 744 грн
Аренда современного офиса на Подоле ( Воздвиженка ) в Бизнес Центр класса " В + " по адресу улица Воздвиженская. Этаж 6/7 этажного нежилого здания. Общая площадь офиса 312 м2. Фотографии и планировка соответств...
05.02.2026
Поверх:
6/7
Загальна
320 м2
188 000 грн
БЕЗ КОМИССИИ!!! Аренда офисного помещения в бизнес центре класса "В" по ул. Межигорская, площадью 317 м2. Офис расположен на 5-этаже и имеет смешанную планировку (Open Space, 8 кабинетов, помещение под мини кух...
11.02.2022
Поверх:
5/5
Загальна
317 м2
135 492 грн
Популярне на сайті

ОдесаОдеса

КиївКиїв





















