Здам довгостроково офісне приміщення
Київ, р-н Подільський, межигірська, 87
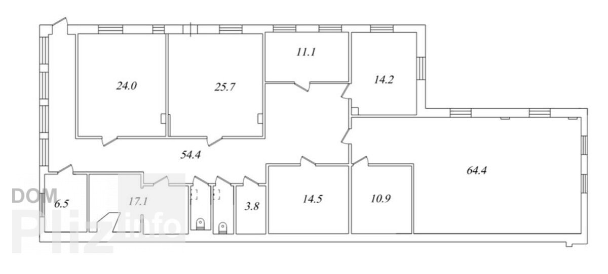
ID: 5287144
71 000 грн
Поверх
3/4
Тип стін
цегла
Загальна площа
250 м2
Стан
житлове
Оренда офісу площею 250 м2 в сучасному бізнес центрі в пішій доступності від станції метро Тараса Шевченка 3 хвилини. Працює генератор 250м2 - третій поверх, доступ 24/7 -паркування •можливість реєстрації юр.адреси •нежитловий фонд -Орендна ставка – 284 грн/м2 -Сервісні послуги - 42 грн/м2 -Опалення - 34 грн/м2 Вода та електроенергія по лічильниках. На території цілодобовий пост фізичної охорони обладнано тривожною кнопкою виклику поліції та відеоспостереження. Пропозиція без комісії для орендарів.
Оновлене: 07.02.2026
71 000 грн
1 624 $
Віктор
посередник
Оновлене: 07.02.2026
Переглянуті
Аренда просторного офиса в центре Киева по адресу улица Григория Сковороды. Этаж 3/4 этажного нежилого здания. Общая площадь офиса 235 м2. Фотографии и планировка соответствуют реальсности. Планировка - рабочие...
05.03.2026
Поверх:
3/4
Загальна
240 м2
200 000 грн
Аренда просторного офиса в центре Киева на Подоле в Бизнес Центре класса " В " по адресу улица Верхний Вал. Этаж 2/4 этажного нежилого здания. Общая площадь офиса 252 м2. Фотографии и планировка соответствуют р...
05.03.2026
Поверх:
2/4
Загальна
250 м2
131 188 грн
Аренда просторного офиса в центре Киева в Бизнес Центре класса " В + " по адресу улица Ильинская. Этаж 5/6 этажного нежилого здания. Полезная площадь офиса 218.05 м2. Арендуемая площадь 250.76 м2 ( 15 % коэффиц...
05.03.2026
Поверх:
5/6
Загальна
250 м2
201 154 грн
Аренда современного офиса в центре Киева на Подоле в Бизнес Центре класса " В " по адресу улица Верхний Вал. Этаж 3/4 этажного нежилого здания. Общая площадь офиса 250 м2. Фотографии и планировка соответствуют ...
05.03.2026
Поверх:
3/4
Загальна
250 м2
142 120 грн
Популярне на сайті

ОдесаОдеса

КиївКиїв



















