Здам довгостроково офісне приміщення
Київ, р-н Подільський, Воздвиженська
ID: 5287159
45 000 грн
Поверх
2/7
Тип стін
цегла
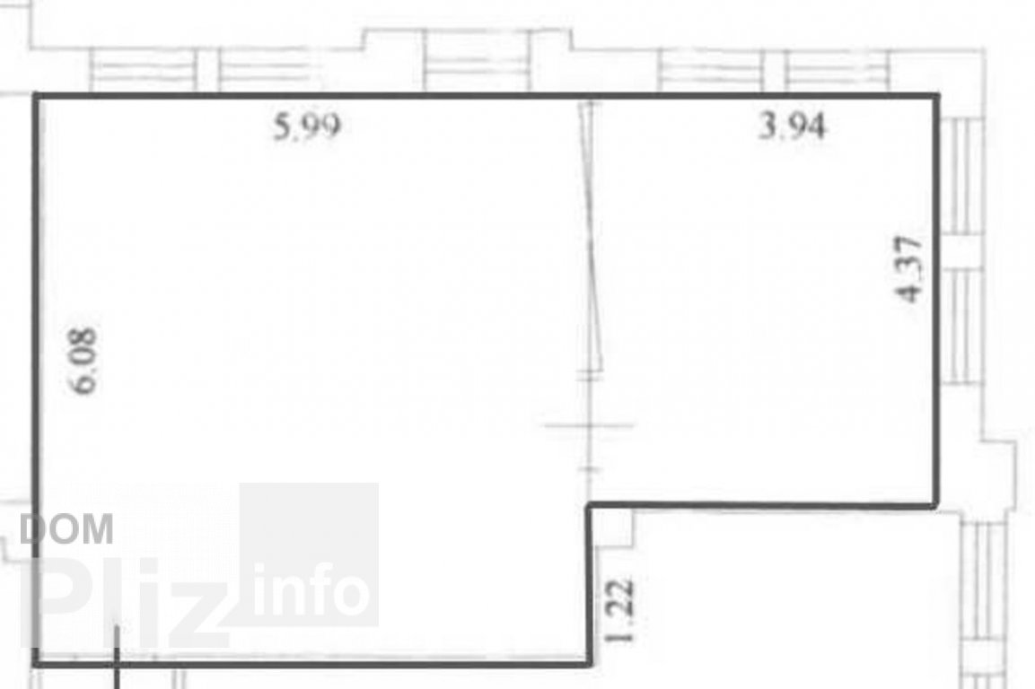
Загальна площа
64 м2
Стан
житлове
Оренда, Офіс 64 м2, Воздвиженка, Контрактова, Поділ,Генератор. Вільне приміщення по вул. Воздвиженська. 2 поверх, з ремонтом, приміщення пропонується БЕЗ МЕБЛІВ. Планування - open-space Площа -55 м2, з коефіцієнтом загальних площ (1,17) - 64,35 м2. Є підземний паркінг для укриття під час тривог. Генератор. Орендна ставка - 600 грн-м2 з ПДВ експлуатаційні - 100 грн/м2 з ПДВ + комунальні по лічильникам. Доступ та охорона 24/7.
Створено : 05.02.2026
45 000 грн
1 043 $
Віктор
посередник
Створено : 05.02.2026
Переглянуті
Аренда офиса 60 м2 в центре Подола по улице Хорива. Нежилой фонд с отдельным входом, планировка: 2 кабинета, зона рецепции, с/у. Оснащено кондиционированием, охранной сигнализацией, на входе защитные ролеты, по...
11.02.2022
Поверх:
1/5
Загальна
60 м2
24 000 грн
Без комиссии! Аренда офиса 60 м2 в Бизнес центре по ул. Игоревская. Первый этаж, планировка: open space. Помещение с офисным ремонтом, предлагается без мебели. Здание оснащено системой вентиляции и кондициониро...
11.02.2022
Поверх:
1/3
Загальна
60 м2
27 000 грн
Аренда офиса 60 м2 в Бизнес центре по улице Воздвиженская. Планировка: Open space, санузлы и переговорные комнаты общего пользования на этаже. Здание оснащено системой вентиляции, кондиционирования, пожарной си...
11.02.2022
Поверх:
5/7
Загальна
60 м2
37 800 грн
Популярне на сайті

ОдесаОдеса

КиївКиїв











