Продається 3-кімнатна квартира
Одеса, р-н Пересипський, Семена Палия (Днепропетровская дорога)
ID: 5287258
2 244 814 грн
(31 178 за м2)
Кіл-ть кімнат
3
Поверх
2/12
Тип стін
цегла
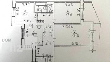
Загальна площа
72 м2
Житлова площа
40 м2
Стан
житлове
Тип нерухомості
Вторинний ринок
Предлагается к продаже трехкомнатная квартира. Общая площадь 72 кв.м, комнаты раздельные, 3 лоджии. Расположена на 2 этаже 12 этажного спецпроекта. В квартире сделан капитальный ремонт, укомплектована мебелью и техникой. В пешей доступности все необходимое: парк, садики, школы, магазины, больницы, а также 15 минут до моря и еще ближе к Куяльницкому лиману.Возможна покупка в кредит от 10% годовых до 20 лет. Посредникам, просьба не беспокоить.
Створено : 05.02.2026
2 244 814 грн
(31 178 за м2)
52 000 $
(722 за м2)
Премьер Сахарова, 24
посередник
Створено : 05.02.2026
Переглянуті
Предлагается к продаже квартира в новом жилом комплексе на Марсельской. Общая площадь 79 кв.м, кухня 18 кв.м. В квартире проведено электричество по специальному проекту, есть такие мелочи как мастер выключатель...
05.02.2026
Кімнат
3
Поверх:
7/15
Загальна
79 м2
Кухня
18 м2
3 065 035 грн
Предлагается к продаже трехкомнатная квартира на Семена Палия. Общая площадь 67,5 кв.м, расположена на 10 этаже, есть еще сверху техэтаж. Просторные, светлые раздельные комнаты, кухня-гостиная. В квартире сдела...
05.02.2026
Кімнат
3
Поверх:
10/10
Загальна
67.5 м2
Житлова
40 м2
Кухня
10 м2
2 935 526 грн
Предлагается к продаже шикарная трёхкомнатная квартира общей площадью 72 кв.м, район Крымского бульвара. В квартире выполнен качественный ремонт, поменяны все коммуникации, металлопластиковое остекление. Просто...
05.02.2026
Кімнат
3
Поверх:
9/12
Загальна
72 м2
Житлова
45 м2
Кухня
9 м2
2 806 018 грн
Продам 3-х комнатную квартиру пр. Добровольского район Северного рынка и Макдональдс. Квартира светлая просторная с ремонтом и бытовой техникой. Квартира расположена на удобном втором этаже. Развитая инфраструк...
05.02.2026
Кімнат
3
Поверх:
2/12
Загальна
72 м2
Житлова
50 м2
Кухня
8 м2
3 453 560 грн
Популярне на сайті

ОдесаОдеса

КиївКиїв
















