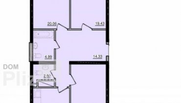
Продається 3-кімнатна квартира
Одеса, р-н Пересипський, Чехова ул. (ЖК Сады ривьеры)
ID: 5287275
2 741 263 грн
(25 910 за м2)
Кіл-ть кімнат
3
Поверх
9/9
Тип стін
цегла
Загальна площа
105.8 м2
Житлова площа
48.2 м2
Площа кухні
36 м2
Стан
житлове
Тип нерухомості
Вторинний ринок
Продам просторную, теплую 3-х комнатную квартиру в новом ЖК возле моря. Общей площадью 108.8 м2. Дом введен в эксплуатацию и на 90% заселенный. Квартира правильной планировки с панорамным остеклением. Дом из красного кирпича с утепленным фасадом. Своё газовое отопление! В комплексе предусмотрена развитая инфраструктура и современная придомовая территория.Возможна покупка в кредит от 10% годовых до 20 лет. Посредникам, просьба не беспокоить.
Створено : 05.02.2026
2 741 263 грн
(25 910 за м2)
63 500 $
(600 за м2)
АН Премьер Добрвольского, 99
посередник
Створено : 05.02.2026
Переглянуті
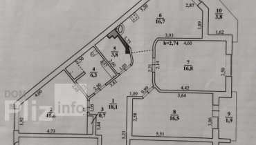
Предлагается к продаже шикарная трехкомнатная квартира в новом жилом комплексе на Сахарова. Общая площадь - 100 кв.м, расположена на 4 этаже 15 этажного дома. Уютная, светлая квартира. Великолепная двухстороння...
05.02.2026
Кімнат
3
Поверх:
4/15
Загальна
99.5 м2
Житлова
55 м2
Кухня
20 м2
3 669 408 грн
Предлагается к продаже трехкомнатная квартира в новом доме на Сахарове. Общая площадь 96 кв.м, расположена на комфортном 17-м этаже. Состояние от строителей, комнаты раздельные, вид моря. Ухоженная придомовая т...
05.02.2026
Кімнат
3
Поверх:
17/25
Загальна
96 м2
Житлова
50 м2
Кухня
16 м2
3 021 865 грн
Предлагается к продаже трехкомнатная квартира в новом кирпичном доме возле моря. Светлая просторная квартира за счет французского остекления, двухстороння с террасой и балконом. Сделан современный ремонт, укомп...
05.02.2026
Кімнат
3
Поверх:
3/10
Загальна
100.2 м2
Кухня
16.7 м2
5 612 035 грн
Предлагается к продаже трехкомнатную квартиру в новом жилом комплексе возое моря.Большая квартира площадью 105 кв.м. со свободной планировкой.5 этаж, панорамные окна выходят на дорогу и во двор. Состояние от с...
05.02.2026
Кімнат
3
Поверх:
5/10
Загальна
105 м2
Житлова
50 м2
Кухня
23.9 м2
3 885 255 грн
Популярне на сайті

ОдесаОдеса

КиївКиїв























