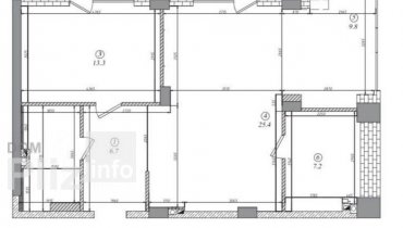
Продається 2-кімнатна квартира
Одеса, р-н Пересипський, Бочарова Генерала ул.
ID: 5288653
2 935 940 грн
(34 704 за м2)
Кіл-ть кімнат
2
Поверх
4/6
Тип стін
цегла
Загальна площа
84.6 м2
Площа кухні
26 м2
Стан
житлове
Тип нерухомості
Вторинний ринок
Предлагается к продаже просторная двухкомнатная квартира в новом жилом комплексе на Сахарова.Общая площадь 85 кв.м, современная планировка, расположена на 4 этаже малоэтажного дома. Состояние от строителей. Идеальный вариант для семьи, ценящей качество, пространство и комфорт. Дом расположен в черте города, в спокойном и удобном районе.Кирпичный малоэтажный дом имеет 6 этажей, что создает атмосферу уюта и тишины.Есть лифт и удобная парковка для жителей.Автономное здание с собственным отоплением и горячей водой, низкие коммунальные платежи.Новый, ухоженный комплекс, все продумано до мелочей для комфортной жизни. Посредникам, просьба не беспокоить.
Оновлене: 23.03.2026
2 935 940 грн
(34 704 за м2)
67 000 $
(792 за м2)
Премьер Сахарова, 24
посередник
Оновлене: 23.03.2026
Переглянуті
Продаю двухкомнатную двухстороннюю квартиру в новом кирпичном доме. Просторная квартира, общей площадью 76м2. Квартира с ремонтом, входная дверь бронированная. Санузел совмещен. Отличная инфраструктура. Развиты...
23.03.2026
Кімнат
2
Поверх:
9/10
Загальна
76 м2
Житлова
40 м2
2 410 100 грн
Продам 2-комнатную квартиру в ЖК Зеленый Мыс. Общая площадь 89 м2, кухня-студия 60 м2 и просторная спальня. Квартира полностью готова для проживания. Есть вся необходимая техника. Очень просторная, светлая с па...
23.03.2026
Кімнат
2
Поверх:
5/8
Загальна
89 м2
Житлова
75 м2
Кухня
60 м2
4 820 200 грн
Предлагается к продаже двухкомнатная квартира в новом доме на Крымском бульваре. В квартире выполнен современный ремонт из качественных материалов. Общая площадь 76 кв.м., удобный средний этаж. Закрытая охраняе...
23.03.2026
Кімнат
2
Поверх:
7/16
Загальна
76 м2
Житлова
40 м2
Кухня
18 м2
3 724 700 грн
Продается 2-ух комнатная квартира на 6 этаже 10 этажного кирпичного дома на ул. Сахарова. Окна квартиры выходят на ул. Сахарова, южная сторона. Общая площадь квартиры 75 кв.м, жилая - 40 кв.м. В квартире сделан...
23.03.2026
Кімнат
2
Поверх:
6/10
Загальна
75 м2
Житлова
40 м2
Кухня
10 м2
3 067 400 грн
Популярне на сайті

ОдесаОдеса

КиївКиїв














