Продається будинок
Біляївський район, Усатово, Грушевского ул.
ID: 5288960
5 275 404 грн
(35 169 за м2)
Поверховість
1/1
Тип стін
цегла
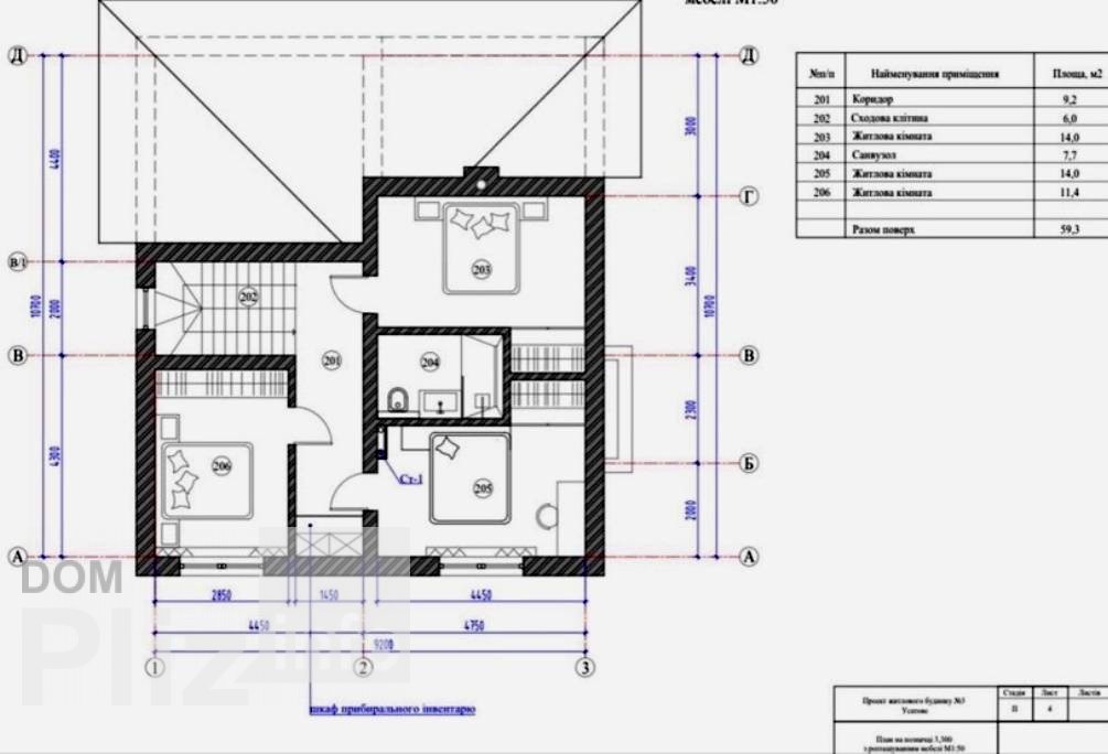
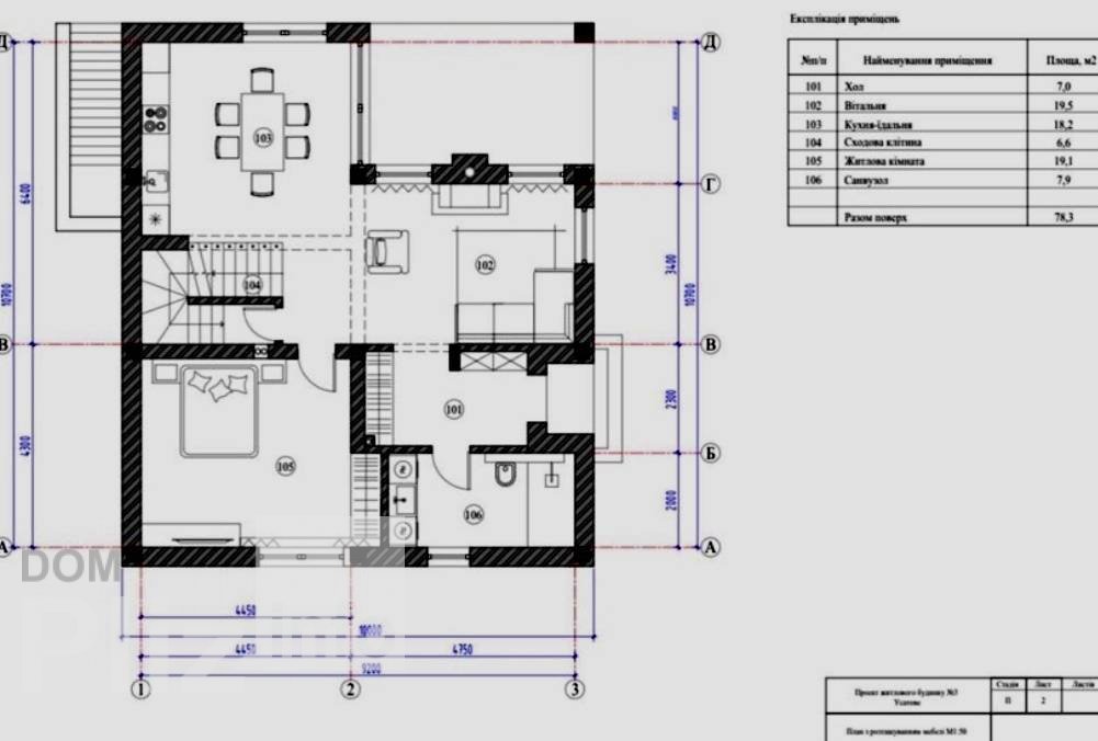
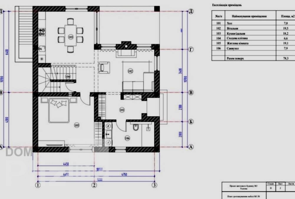
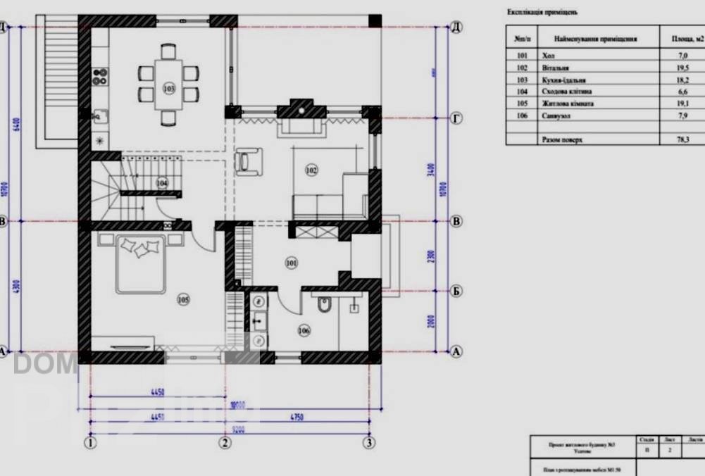
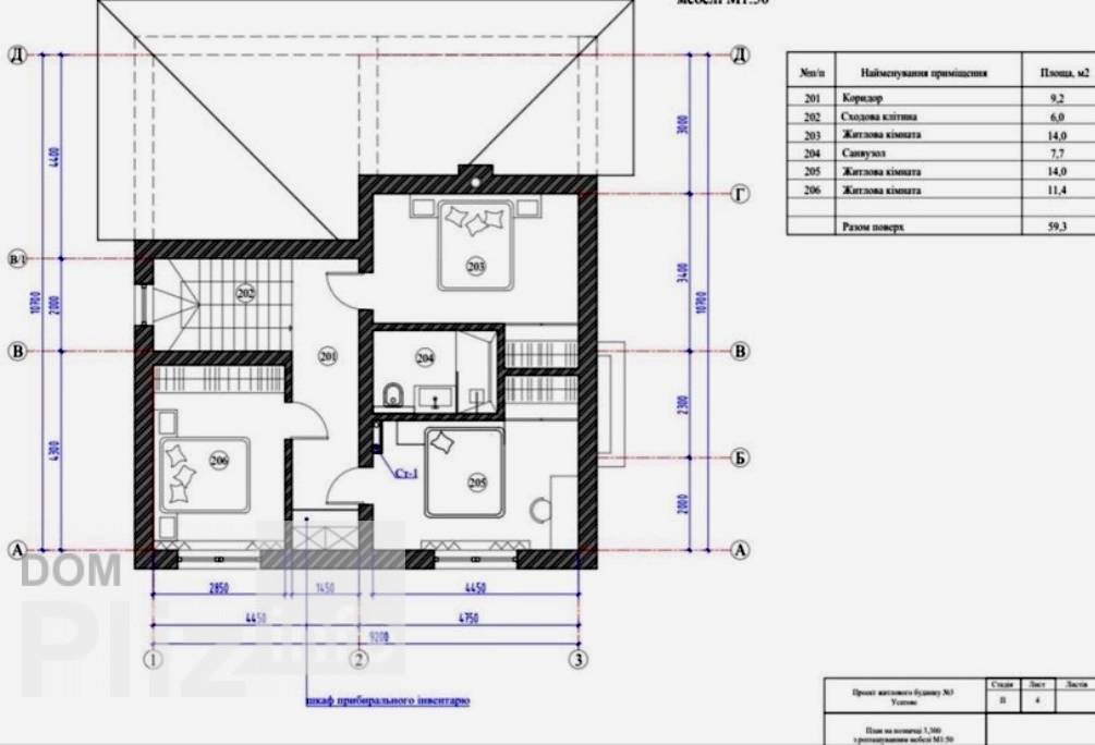
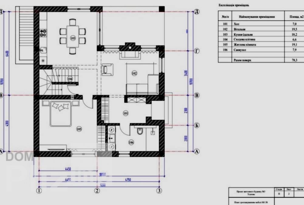
Загальна площа
150 м2
Житлова площа
80 м2
Площа кухні
30 м2
Стан
житлове
Тип нерухомості
Будинок
Продается новый 1-этажный дом с мансардой, расположенный в центре села Усатого. Участок 4 сотки, правильной формы с удобным заездом. Т от брачного площадь дома 150 метров, 4 комнаты, большая кухня-гостиная, терраса 20 метров, 2 санузла. В доме есть большой подвал с двумя выходами. В доме сделан ремонт из современных и качественных материалов. Посредникам, просьба не беспокоить. ID объекта: 213289
Оновлене: 22.03.2026
5 275 404 грн
(35 169 за м2)
120 000 $
(800 за м2)
АН Премьер Добрвольского, 99
посередник
Оновлене: 22.03.2026
Переглянуті
Продам крепкий дом на 7 сотках земли, разделённый на две самостоятельные половины. В первой половине прихожая, большая кухня-студия, 2 спальни и ещё одна комната, туалет, ванная, котельная. Во второй половине 2...
22.03.2026
Поверховість:
1
Загальна
150 м2
Житлова
60 м2
Кухня
18 м2
2 329 970 грн
В продаже предлагается новый двухэтажный дом, построенный из качественных материалов с соблюдением всех строительных норм. Строили для себя, поэтому продумана каждая деталь для комфортного и долговечного прожив...
22.03.2026
Поверховість:
1
Загальна
140 м2
Житлова
81 м2
3 516 936 грн
22435 Продам 2-х этажный дом, новой постройки, в Усатово. Общая площадь 145 кв.м. Состояние под ваш дизайн. Окрашены стены. Укомплектованный санузел, облицован плиткой. Автономное отопление. Все городские комму...
21.03.2026
Поверховість:
1
Загальна
145 м2
Житлова
100 м2
Кухня
20 м2
Ділянка
2
2 044 219 грн
14752 Продам участок - 10 соток в районе Клеверного моста. На участке расположен 3-этажный дом, который находится на этапе строительства. На первом этаже два гаража и комната, где есть холодильник, эл. плитка...
21.03.2026
Поверховість:
1
Загальна
150 м2
Житлова
80 м2
Кухня
20 м2
Ділянка
10
2 417 894 грн
Популярне на сайті

ОдесаОдеса

КиївКиїв
















