Продається 2-кімнатна квартира
Одеса, р-н Хаджибейський, Профсоюзная ул.
ID: 5292567
2 015 720 грн
(38 032 за м2)
Кіл-ть кімнат
2
Поверх
1/11
Тип стін
цегла
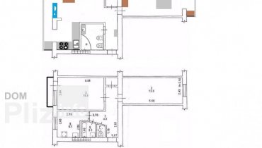
Загальна площа
53 м2
Житлова площа
19 м2
Площа кухні
18 м2
Стан
житлове
Тип нерухомості
Вторинний ринок
Продаётся светлая и просторная 2-комнатная квартира в новом доме ЖК «Акварель». Квартира расположена на 1 этаже 11-этажного монолитно-каркасного дома, общая площадь — 53 м², жилая — 19 м², кухня — 18 м². Идеально подходит как для проживания, так и для коммерческой деятельности: все окна выходят на фасад, что обеспечивает отличную видимость с дороги и удобный доступ для клиентов. Квартира находится в новом доме 2020 года, с качественными строительными материалами и крышей газовой котельной. Отличная локация: рядом транспортная развязка, магазины и развитая инфраструктура района. Возможен торг. Этот объект станет удачным выбором для инвестиций или комфортного проживания с удобным доступом к городуВозможна покупка в кредит от 10% годовых до 20 лет. Посредникам, просьба не беспокоить.
Оновлене: 22.03.2026
2 015 720 грн
(38 032 за м2)
46 000 $
(868 за м2)
Премьер Космонавтов, 32
посередник
Оновлене: 22.03.2026
Переглянуті
32771 Продам 2-комнатную квартиру в ЖК 60 Жемчужина с ремонтом.Общая площадь — 53кв.м, окна на ипподромКвартира расположена на комфортном среднем этаже, с красивым современным ремонтом.Грамотная планировка: ку...
21.03.2026
Кімнат
2
Поверх:
22/24
Загальна
53 м2
Житлова
20 м2
Кухня
15 м2
4 942 896 грн
32672 Простора квартира з потенціалом для життя або бізнесу!Квартира у житловому стані.48 м² опалювальної частини:2 роздільні спальні, простора кухня,роздільний санвузол + 28 м² утеплена прибудова з власним під...
21.03.2026
Кімнат
2
Поверх:
1/5
Загальна
48 м2
Житлова
35 м2
Кухня
8 м2
1 533 700 грн
В продаже 2-х комнатная квартира на Варненской. Общая площадь 44 м.кв., раздельные комнаты 13 м.кв. и 16.5 кв.м., кухня 6 м.кв. Санузел смежный, современно облицован, угловая ванная. Остается мебель и техника, ...
22.03.2026
Кімнат
2
Поверх:
5/5
Загальна
44 м2
Житлова
28 м2
Кухня
6 м2
1 840 002 грн
Продам 2х комнатную квартиру на Черемушках на среднем этаже в жилом состоянии. Большой трамвай планировка, но можно сделать раздельные комнаты. Развитая инфраструктура. Хорошая транспортная развязка. Спешите ку...
22.03.2026
Кімнат
2
Поверх:
2/5
Загальна
44 м2
Житлова
35 м2
Кухня
7 м2
1 752 362 грн
Популярне на сайті

ОдесаОдеса

КиївКиїв











