Продається 3-кімнатна квартира
Полтава, р-н Київський, Петра Юрченка
ID: 5292620
2 590 170 грн
(23 983 за м2)
Кіл-ть кімнат
3
Поверх
3/4
Тип стін
цегла
Загальна площа
108 м2
Площа кухні
14 м2
Стан
житлове
Тип нерухомості
Вторинний ринок
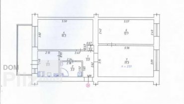
Трёхкомнатная 108 кв.м. с индивидуальным отоплением в тихом районе.Tрехcтоpонняя 3-комнатная квартира на 3 этаже 4-этажного дома. Отопление индивидуальное газовое (двухконтурный котел). Продается с мебелью и техникой (стиральная машина, холодильник side by side, посудомоечная машина, микроволновая печь, духовой шкаф), полностью меблированная (мебель - индивидуальный проект) + текстиль. ПЛАНИРОВКА Оптимальная с изолированными комнатами. (См. Фото) . Много мест хранения. КОНДИЦИОНЕРЫ во всех комнатах. РЕМОНТ: капитальный, делали все для себя, продумана каждая мелочь. Менялась вся электрика (медная проводка), сантехника, трубы водоснабжения, стояки. Выровнены стены, ВЕЗДЕ ламинат (санузел – плитка), тройные стеклопакеты. Межкомнатные двери-купе из массива со стеклом, входная дверь бронированная ( с сейфовым электронным замком. Квартира ухоженная. Коммуниуации в подъезде поменяны. ДВОР: Дом стоит в большом закрытом зеленом дворе с тенистыми деревьями и большим парковым пространством в отдалении от оживленных улиц с оборудованной детской площадкой, площадка со спортивными тренажерами , футбольное поле. Есть зона барбекю с мангалами, лавочки. Рядом кап.гаражи СТАЛИНКА: кирпичный, теплый дом. Стены толстые, никого не слышно. Подьезд с широкими лестницами и площадками, 2 квартиры на этаже. Есть колясочная в подъезде(коляски, велосипеды). АНГалерея Недвижимости
Створено : 05.02.2026
2 590 170 грн
(23 983 за м2)
60 000 $
(556 за м2)
АН "Галерея недвижимости"
посередник
Створено : 05.02.2026
Переглянуті
#127968;Продам 3-х кімнатну квартиру..Продам 3-х кімнатну квартиру, у мікрорайоні Браїлки. Загальна площа 60,2 кв.м. Поверх 5/5 панельного будинку, дах відремонтовано.Санвузол роздільний.Не кутова.Мебльована з ...
05.02.2026
Кімнат
3
Поверх:
5/5
Загальна
60 м2
Кухня
6 м2
1 251 916 грн
Продам 3-квартиру в Київському районі.Продається 3-кімнатна квартира з підвалом. Виконаний частковий ремонт. Залишаються всі меблі та побутова техніка. Є гардеробна. Тихий двір. Поруч дитячий садок та школа..Ви...
05.02.2026
Кімнат
3
Поверх:
4/5
Загальна
60 м2
Кухня
6 м2
1 554 102 грн
ПРОДАЖ 3-кім квартири з ІНДИВІДУАЛЬНИМ опаленням! Загальна площа 64, 9м2: простора кухня студія, яку легко можна зробити окремою (сама кухня збільшена), дві окремі спальні, балкон засклений! Квартира не кутова!...
05.02.2026
Кімнат
3
Поверх:
3/5
Загальна
64 м2
Житлова
40 м2
Кухня
9 м2
2 417 492 грн
Продажа 3х кімнатної квартири 67,1м2., район Балковий., Продається 3х кімнатна квартира, на першому поверсі пятиповерхового будинку. Загальна площа - 67,1м2.(житлова-47,3м2; допоміжна-19,8м2). Перший поверх цег...
05.02.2026
Кімнат
3
Поверх:
1/5
Загальна
67 м2
Кухня
5 м2
2 201 645 грн
Популярне на сайті

ОдесаОдеса

КиївКиїв



















