Продається 2-кімнатна квартира
Одеса, р-н Приморський, Еврейская ул.
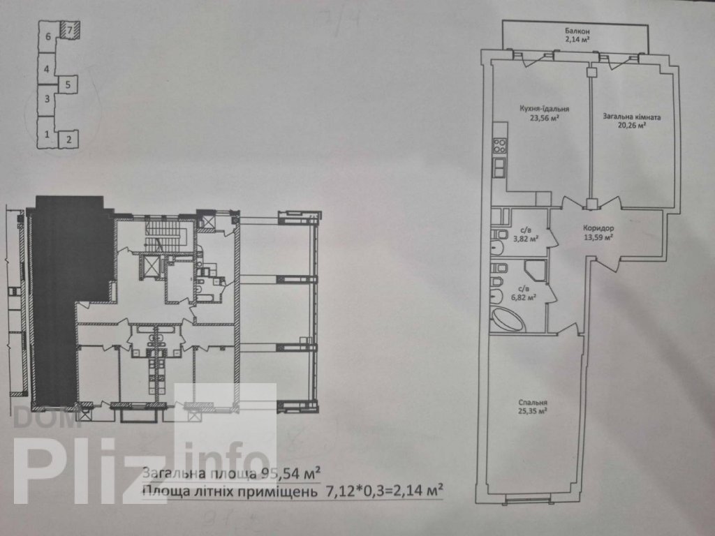
ID: 5292627
8 770 560 грн
(92 322 за м2)
Кіл-ть кімнат
2
Поверх
2/7
Тип стін
цегла
Загальна площа
95 м2
Житлова площа
45.5 м2
Площа кухні
24 м2
Стан
житлове
Тип нерухомості
Вторинний ринок
Двухкомнатная квартира мечты в самом сердце Одессы – ЖК «Дом на Еврейской». Представьте утро, когда вы просыпаетесь в просторной квартире в центре Одессы, открываете балкон — и вас окутывает атмосфера старого города, аромат кофе из ближайшего кафе и свежий морской воздух. Это не мечта – это реальность. Площадь: 95,5 м², комфортный 2-й этаж, современная планировка: 2 отдельные комнаты, кухня для душевных завтраков, удобный коридор, 2 санузла, балкон для вечерних размышлений. Инфраструктура комплекса: подземный паркинг, детские и спортивные площадки, тишина и безопасность в центре города. Выходите из дома — и через несколько минут вы уже в парке Шевченко, гуляете по Дерибасовской, любуетесь Приморским бульваром или нежитесь на Ланжероне. Идеальный вариант для тех, кто ценит комфорт, локацию и качество. Звоните по подробностям! Посредникам, просьба не беспокоить.
Оновлене: 07.05.2026
8 770 560 грн
(92 322 за м2)
200 000 $
(2 105 за м2)
АН ПРЕМЬЕР Преображенская, 49/51
посередник
Оновлене: 07.05.2026
Переглянуті
Предлагается к продаже видовая 2-комнатная квартира в новом жилом комплексе бизнес-класса. Из окон потрясающие виды на море, парк Победы и парк Космонавтов, не закрываемые рядом стоящими домами. Функциональная ...
07.05.2026
Кімнат
2
Поверх:
18/25
Загальна
99.4 м2
Житлова
32.2 м2
Кухня
39.1 м2
4 385 280 грн
В продаже просторная 2-х комнатная квартира современной планировки с кухней-студией в центре Одессы. Расположена в жилом комплексе бизнес-класса. Прекрасный вид на море. Закрытая территория, большой подземный п...
07.05.2026
Кімнат
2
Поверх:
16/25
Загальна
100.3 м2
Житлова
33.4 м2
Кухня
39 м2
5 262 336 грн
Просторная 2-комнатная квартира площадью 100 м² в малоквартирном клубном доме на 9-й станции Большого Фонтана. Клубный дом рассчитан всего на 16 квартир, что обеспечивает приватность и комфорт. В здании установ...
07.05.2026
Кімнат
2
Поверх:
1/4
Загальна
100.6 м2
Житлова
36.5 м2
Кухня
26.8 м2
6 529 682 грн
В продаже 2х комнатная квартира в Приморском районе , улица Армейская. Дом из красного кирпича. Общая площадь 93 кв.м. Две раздельные комнаты, просторная кухня, большой санузел. Квартира Двусторонняя, большая з...
07.05.2026
Кімнат
2
Поверх:
4/10
Загальна
93 м2
Житлова
45 м2
Кухня
16 м2
4 078 310 грн
Популярне на сайті

ОдесаОдеса

КиївКиїв












