Продається будинок
Лиманський район, Фонтанка, Николаевская ул.
ID: 5292904
4 101 103 грн
(33 073 за м2)
Поверховість
1/2
Тип стін
цегла
Загальна площа
124 м2
Стан
житлове
Тип нерухомості
Будинок
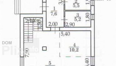
Предлагается к продаже таун-хаус в Фонтанке. Общая площадь 124 кв.м, состояние от строителей, свет, вода заведены на участок, газовая труба вдоль таун-хауса (газ не подведен). Дом утеплен мин.ватой -100 мм. Окна (немецкие) и бронедверь (под заказ) премиум качества. Планировка: на первом этаже гостевая комната, санузел, кухня-студия, на втором этаже три отдельные комнаты и санузел, из одной комнаты есть выход на балкон. Есть свой двор спереди и сзади дома, 2 паркоместа. Посредникам, просьба не беспокоить. ID объекта: 210995
Створено : 05.02.2026
4 101 103 грн
(33 073 за м2)
95 000 $
(766 за м2)
Премьер Сахарова, 24
посередник
Створено : 05.02.2026
Переглянуті
Продам дом современного дизайна,внешняя отделка:светлая штукатурка дерево натуральное.2 этажа, крыша-металлочерепица. Это дуплекс,два отдельных входа.Можно для большой семьи (несколько поколений будут жить рядо...
05.02.2026
Поверховість:
1
Загальна
133 м2
Житлова
90 м2
5 396 188 грн
Продам дом современного дизайна. Выглядит очень стильно. Отличное качество строительства. Сразу продумано место для машины (находится под террасой второго этажа. Снаружи дом полностью закончен; сочетание штукат...
05.02.2026
Поверховість:
1
Загальна
133 м2
Житлова
100 м2
Кухня
40 м2
5 396 188 грн
Продам шикарный дом , который строился для себя. Дом одноэтажный что делает его очень удобным для жизни . Отличное качество материалов . Удобная планировка, гараж на две машины . Три отдельные спальни . Большая...
05.02.2026
Поверховість:
1
Загальна
118 м2
Житлова
70 м2
Кухня
36 м2
3 669 408 грн
Предлагается к продаже два дома на одном участке в Фонтанке. Общая площадь первого дома 72,6 кв.м. (три комнаты, кухня, санузел и коридор), площадь второго дома – 31,7 кв.м. (комната с кухней и коридор). Везде ...
05.02.2026
Поверховість:
1
Загальна
120 м2
Житлова
50 м2
3 885 255 грн
Популярне на сайті

ОдесаОдеса

КиївКиїв













