Продається 3-кімнатна квартира
Полтава, р-н Подільський, Небесная Сотня
ID: 5292999
5 180 340 грн
(63 175 за м2)
Кіл-ть кімнат
3
Поверх
6/9
Тип стін
цегла
Загальна площа
82 м2
Стан
житлове
Тип нерухомості
Вторинний ринок
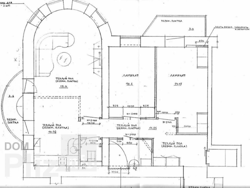
В продажу гарна кквартира на Подолі (властнiсть бiльше 3 рокiв) 3 кімнати Кухня студія і дві спальні Індивідуальне газове опалення (італійський котел BAXI) Квартира світла. Тепла та економна завдяки теплій підлозі Кондиціонери Вбудовані меблі (шафи купе, кухня, спальня) входить у вартість 2 засклені балкони Чистий підїзд (приємні сусіди) Поруч школи, садки, магазини, риночок, поліклініка До центру 15 хвилин ходьби (1 зупинка) Зупинки за 20 метрів 3 комнаты · 6 этаж из 9 Общая площадь 82 м? Стены из кирпича Построен в 2011-2015 Индивидуальное отопление АНГалерея Недвижимости
Створено : 05.02.2026
5 180 340 грн
(63 175 за м2)
120 000 $
(1 463 за м2)
Антон
посередник
Створено : 05.02.2026
Переглянуті
Продам 3-х кімнатну квартиру, Поділ, вул. Анатолія Кукоби.Продам 3-х кімнатну квартиру на Подолі. Загальна площа 79,9 кв.м., окремі кімнати, центральне опалення. Поверх 3u002F3 цегляного будинку, не кутова, є м...
05.02.2026
Кімнат
3
Поверх:
3/3
Загальна
79 м2
Кухня
7 м2
2 158 475 грн
Продам квартиру 90 кв. м в новому цегляному будинку. 1 поверх, не кутова. Ремонт робили з дизайнером, враховуючи кожну деталь. Велика кухня студія і дві окремі кімнати, велика гардеробна шафа, окремий санвузол,...
05.02.2026
Кімнат
3
Поверх:
1/10
Загальна
89 м2
Кухня
36 м2
5 050 832 грн
Продам 3х кімн квартиру на Леваді. Продам 3х кімн кв на Леваді, Олександра бідного 16. 2016 р здача! Все що є на фото залишається в кв Торг можливий. Вид обєкта: Новобудова; Тип будинку: Житловий фонд 2011-2020...
05.02.2026
Кімнат
3
Поверх:
3/10
Загальна
88 м2
Кухня
16 м2
4 230 568 грн
Популярне на сайті

ОдесаОдеса

КиївКиїв


























