Продається 2-кімнатна квартира
Одеса, р-н Приморський, Пишоновская ул.
ID: 5293022
2 543 462 грн
(41 357 за м2)
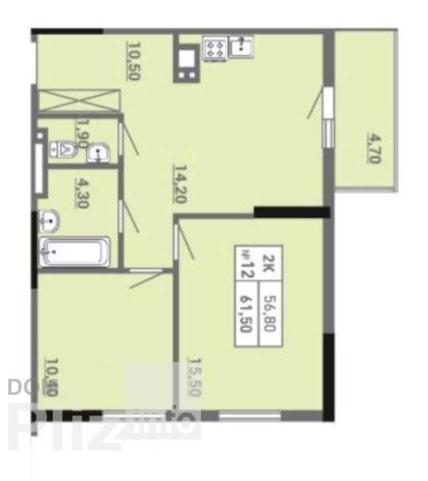
Кіл-ть кімнат
2
Поверх
16/19
Тип стін
цегла
Загальна площа
61.5 м2
Житлова площа
40 м2
Площа кухні
14.2 м2
Стан
житлове
Тип нерухомості
Вторинний ринок
Предлагается к продаже 2-комнатная квартира с современной функциональной планировкой в новостройке центрального района города. Высокий этаж, окна с панорамным остеклением – много света и красивый вид на город и море. Выполнена стяжка пола, установлены счетчики, заведены все коммуникации, а дальше - фантазируйте без границ! Преимущество локации – настоящий образовательный хаб! В радиусе района — 8 высших учебных заведений, в том числе ведущие университеты Одессы. Идеально для студентов, преподавателей и инвесторов, ищущих недвижимость с гарантированным спросом на аренду. Комфортная жизнь – разумное инвестирование. Рядом: транспорт, школы, детсады, магазины, медицинские и культурные заведения, парк. Жилье, сочетающее удобство, качество и выгодную цену. ???? Приглашаем на просмотр – квартира уже ждет Вас! Посредникам, просьба не беспокоить.
Оновлене: 07.05.2026
2 543 462 грн
(41 357 за м2)
58 000 $
(943 за м2)
АН ПРЕМЬЕР Преображенская, 49/51
посередник
Оновлене: 07.05.2026
Переглянуті
Продается 2-комнатная квартира в новом доме ЖК Академгородок, ул. Говорова. Выполнен качественный ремонт, оборудована мебелью и техникой. Комнаты раздельные. Лоджия. Сан.узел раздельный, ванна. Мебель на кухне....
07.05.2026
Кімнат
2
Поверх:
2/12
Загальна
53.5 м2
Житлова
29 м2
Кухня
12.6 м2
4 034 458 грн
Предлагается к продаже уникальная просторная 2 комнатная квартира в крепком доме на Итальянском бульваре возле МухКомедии и парка Шевченко. 3/3 этаж, квартира видовая, 2 раздельные комнаты, большая кухня студия...
07.05.2026
Кімнат
2
Поверх:
3/3
Загальна
63.6 м2
Житлова
37 м2
Кухня
13 м2
2 411 904 грн
В продаже 2 комнатная квартира в самом востребованном районе города. Квартира расположена на среднем этаже. Квартира с качественным ремонтом. Две отдельные светлые комнаты, большая кухня, оборудованная современ...
07.05.2026
Кімнат
2
Поверх:
7/10
Загальна
60 м2
Житлова
22 м2
Кухня
20 м2
3 924 826 грн
Предлагается к продаже 2-комнатная квартира на 1-ой ст. Большого Фонтана. Хорошее жилое состояние. 2 просторные комнаты по 18 кв.м. каждая с окнами во двор. Окна металлопластиковые, полы - ламинат, стены - обои...
07.05.2026
Кімнат
2
Поверх:
2/2
Загальна
51.6 м2
Житлова
36.7 м2
Кухня
5.6 м2
1 666 406 грн
Популярне на сайті

ОдесаОдеса

КиївКиїв
























