Продається 1-кімнатна квартира
Одеса, р-н Пересипський, Школьная ул. (ЖК Новая Европа)
ID: 5293035
1 186 966 грн
(37 681 за м2)
Кіл-ть кімнат
1
Поверх
2/13
Тип стін
цегла
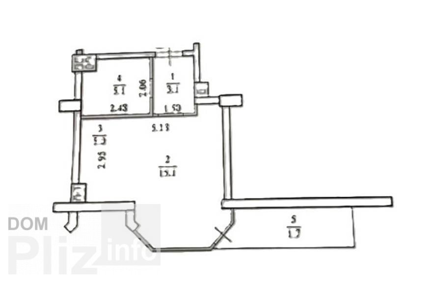
Загальна площа
31.5 м2
Житлова площа
25 м2
Площа кухні
6 м2
Стан
житлове
Тип нерухомості
Вторинний ринок
Предлагается к продаже однокомнатная квартира в новом доме. Общая площадь 32 кв.м, расположена на 2 этаже 13 этажного дома. В квартире начат ремонт, розведена проводка, на кухне сделан фартук под мебель, в санузле современная плитка, сделана сантехника. Квартира очень светлая с красивыми панорамными окнами. Есть выход на незастекленную лоджию. Закрытая территория комплекса, в пешей доступности все необходимое.Возможна покупка в кредит от 10% годовых до 20 лет. Посредникам, просьба не беспокоить.
Оновлене: 22.03.2026
1 186 966 грн
(37 681 за м2)
27 000 $
(857 за м2)
Премьер Сахарова, 24
посередник
Оновлене: 22.03.2026
Переглянуті
Предлагается к продаже однокомнатная квартира р-н Семена Палия угол Марсельская, Нежилое помещение 33,3 кв. метров, кухня 9 кв. метров, комната 17 кв. метров. Стены-обои. на полу линолеум. Квартира под капиталь...
22.03.2026
Кімнат
1
Поверх:
1/9
Загальна
33.3 м2
Житлова
17.3 м2
835 272 грн
Предлагается к продаже просторная и светлая однокомнатная квартира в новом жилом комплексе. Общая площадь 39 кв.м, расположена на 11 этаже 12 этажного дома. Состояние от строителей, панорамные окна. Закрытая т...
22.03.2026
Кімнат
1
Поверх:
11/12
Загальна
39 м2
1 121 023 грн
Предлагается к продаже квартира в новом кирпичном доме. Расположенном в одном из самых лучших районов Одессы – море в шаговой доступности, 200м до ТРЦ Ривьера с множеством магазинов, кинотеатром и другими развл...
22.03.2026
Кімнат
1
Поверх:
1/9
Загальна
35 м2
Житлова
10 м2
Кухня
17 м2
1 538 660 грн
Предлагается к продаже однокомнатная квартира в новом жилом комплексе возле моря. Состояние от строителей, индивидуальное газовое отопление, установлен котел АОГВ.Светлая и теплая квартира. Дом из красного кирп...
22.03.2026
Кімнат
1
Поверх:
2/9
Загальна
39 м2
Житлова
8 м2
1 274 889 грн
Популярне на сайті

ОдесаОдеса

КиївКиїв







































