Продається 0-кімнатна квартира
Одеса, р-н Приморський, Фонтанская дорога ул.
ID: 5293308
12 713 600 грн
(63 568 за м2)
Поверх
7/7
Тип стін
цегла
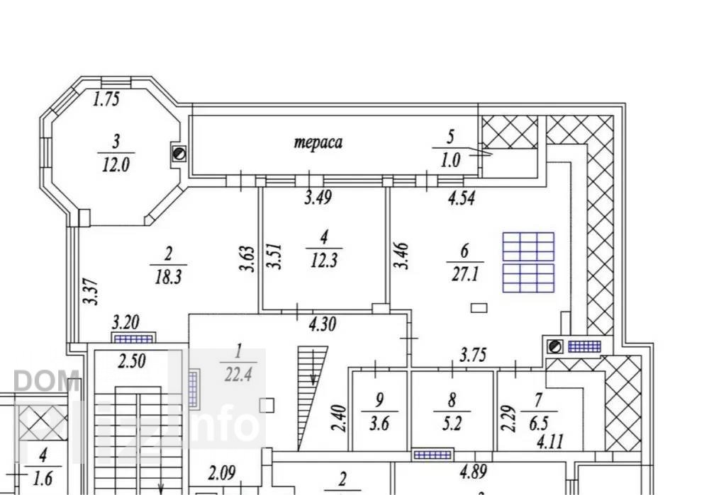
Загальна площа
200 м2
Житлова площа
80 м2
Площа кухні
30 м2
Стан
житлове
Тип нерухомості
Вторинний ринок
Предлагаем к продаже элитный пентхаус в новом современном жилом комплексе ЖК "Консул". Идеальный выбор для тех, кто ценит комфорт, безопасность и престиж.Общая площадь 200 кв.м., расположен на 7м этаже, 7 этажного дома. Дом из красного кирпича.Панорамные виды на город и комфортная тишина благодаря качественной звукоизоляции.Просторные балконы и терраса для отдыха.Дом введен в эксплуатацию.Полная Автономия ( электро и водоснабжение в доме). Индивидуальное отопление, духконтурный газовый котел компании Bosh.Современные инженерные системы, высококачественная постройка. Закрыта территория с круглосуточной охраной и видеонаблюдением. Бассейн для жителей комплекса. ЖК "Консул" это безопасное, комфортное и престижное место для жизни у моря. Рядом школы, детсады, магазины, рестораны и удобные транспортные развязки. Отличный выбор. Звоните. Посредникам, просьба не беспокоить.
Оновлене: 29.03.2026
12 713 600 грн
(63 568 за м2)
290 000 $
(1 450 за м2)
АН Премьер Черняховского
посередник
Оновлене: 29.03.2026
Переглянуті
Эта квартира в ЖК «Пространство на Розкидайловской» создана для тех, кто ценит качество и современный подход к жизни. Малоэтажный дом с небольшой плотностью жителей — никаких переполненных лифтов и лишнего шума...
29.03.2026
Поверх:
3/7
Загальна
18 м2
1 183 680 грн
Мечтаете о утре с чашкой кофе на террасе и прогулках к морю всего за 5 минут? Эта квартира ждёт именно вас! Площадь — 30 кв. м: идеальное пространство для стильного холостяцкого жилья или уютного гнёздышка для ...
29.03.2026
Поверх:
13/23
Загальна
30 м2
2 536 319 грн
Мечтаешь жить у моря или выгодно инвестировать?Эта квартира – именно то, что ты ищешь!Предлагается к продаже квартира-студия в одном из самых престижных жилых комплексов Одессы – в самом сердце Аркадии.Оптималь...
29.03.2026
Поверх:
2/26
Загальна
27.07 м2
1 534 400 грн
1-комнатная студия в АК ЛитературныйХарактеристики квартиры:Площадь — 26 м²Формат — студияЭтаж — 5 / 21Состояние — с ремонтомУкомплектована мебелью и техникойГотова для проживания или сдачи в арендуО комплексе...
29.03.2026
Поверх:
5/21
Загальна
25.9 м2
2 192 000 грн
Популярне на сайті

ОдесаОдеса

КиївКиїв

















