Продається 3-кімнатна квартира
Одеса, р-н Приморський, Испанский пер.
ID: 5295410
4 098 348 грн
(46 838 за м2)
Кіл-ть кімнат
3
Поверх
8/10
Тип стін
цегла
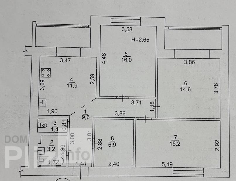
Загальна площа
87.5 м2
Житлова площа
46 м2
Площа кухні
14 м2
Стан
житлове
Тип нерухомості
Вторинний ринок
В продаже 3-х комнатная квартира общей площадью 87 м2. Расположена в новом, кирпичном газифицированном, малоквартирном доме по адресу Испанский переулок. Хороший ремонт, дорогая встроенная мебель. Продумана каждая деталь. Все делалось для себя. Есть теплые полы, видеонаблюдение, датчики затопления, дыма, газовый, подключена к охране. В квартире остается все, кроме телевизора, холодильника, стиральной машинки и детской кроватки. Звоните!Возможна покупка в кредит от 10% годовых до 20 лет. Посредникам, просьба не беспокоить.
Оновлене: 08.02.2026
4 098 348 грн
(46 838 за м2)
95 000 $
(1 086 за м2)
АН ПРЕМЬЕР Преображенская, 49/51
посередник
Оновлене: 08.02.2026
Переглянуті
11671 Продается видовая трехкомнатная квартира на ул. Большая Арнаутская в Башне Чкалов.Три спальни и кухня-студия. Квартира в полной комплектации, с мебелью и техникой. Три панорамных окна , с видом на море!...
07.02.2026
Кімнат
3
Поверх:
17/18
Загальна
96 м2
Житлова
55 м2
Кухня
18 м2
9 059 505 грн
Кирпичный дом. 80/50/12, трёхсторонняя. Окна металлопластик. Новый бойлер, санузел раздельный- современная облицовка. Балкон из кухни 6м.кв., застеклён, утеплён. Сантехника и трубы новые. Комнаты раздельные, св...
08.02.2026
Кімнат
3
Поверх:
9/9
Загальна
80 м2
Житлова
47 м2
Кухня
11 м2
4 529 753 грн
Просторная трёхкомнатная квартира в центре города. общая площадь 90 кв.м.. На полу ламинат. Санузел совмещен, современно облицован. Вся техника заменена на новую. АГВ. Приборы учета. Продажа с мебелью, техникой...
08.02.2026
Кімнат
3
Поверх:
2/4
Загальна
90 м2
Житлова
60 м2
Кухня
8 м2
4 745 455 грн
80/20 15 12/10. Высота потолков - 3,4 м. Ракушечник. 2х-контурный котел, гидрофор. Пол - плитка, ковролин. Все комнаты с окнами. Жилое состояние. Три квартала до Преображенского собора и до детской площадки. Дв...
08.02.2026
Кімнат
3
Поверх:
2/2
Загальна
80 м2
Житлова
47 м2
Кухня
10 м2
3 364 959 грн
Популярне на сайті

ОдесаОдеса

КиївКиїв




















