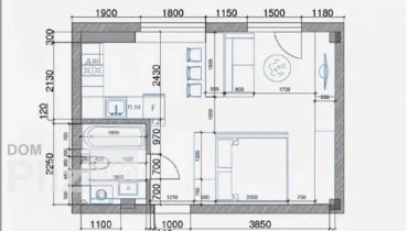
Продається 1-кімнатна квартира
Одеса, р-н Хаджибейський, Алексея Вадатурского ул. (Малиновского Маршала ул.)
ID: 5297036
863 390 грн
(27 851 за м2)
Кіл-ть кімнат
1
Поверх
2/4
Тип стін
цегла
Загальна площа
31 м2
Житлова площа
14 м2
Площа кухні
15 м2
Стан
житлове
Тип нерухомості
Вторинний ринок
Предлагается к продаже однокомнатная квартира в новом сданном доме в Малиновском районе. Находится на 2 этаже 4-х этажного дома с газовым отоплением. Общая площадь квартиры студии 31 кв. Произведен частично ремонт, 2-х контурное АГВ/газовая колонка, проложена качественная проводка, стены ошпаклеваны, заведены все коммуникации, установлены энергосберегающие окна. Квартира с видом на сад и частный сектор. Ограждена территория дома, развита инфраструктура, транспортная развязка. Рядом – магазины, рынок, больница, супермаркеты, кафе и детский сад.Возможна покупка в кредит от 10% годовых до 20 лет. Посредникам, просьба не беспокоить.
Створено : 05.02.2026
863 390 грн
(27 851 за м2)
20 000 $
(645 за м2)
Премьер Космонавтов, 32
посередник
Створено : 05.02.2026
Переглянуті
В продаже 1 комнатная квартира на Черемушках. 18-й этаж, 25-ти этажного дома. Общая площадь 35 м.кв., светлая комната 17 м.кв., просторная кухня 10 м.кв. Функциональная планировка, кухня и комната с панорамным ...
05.02.2026
Кімнат
1
Поверх:
18/25
Загальна
35.3 м2
Житлова
17 м2
Кухня
10 м2
1 295 085 грн
В продаже 1 комнатная квартира на 1-мэтаже 4х этажного дома в новом жилом комплексе Брусника. . Площадь 33.8 м. Плюс патио зона 16 м входит в стоимость. Квартира газифицирована утепленина.Сдача в ближайшее врем...
05.02.2026
Кімнат
1
Поверх:
1/4
Загальна
33.8 м2
Житлова
20 м2
Кухня
10 м2
1 079 238 грн
Продам 1 комнатную квартиру на Черемушках/ ул. Космонавта Комарова. Средний этаж. Общая площадь 35 м.кв., просторная комната 18 м.кв., кухня 7 кв. Большой балкон. Квартира светлая, теплая, не угловая. Хороший к...
05.02.2026
Кімнат
1
Поверх:
4/5
Загальна
35 м2
Житлова
18 м2
Кухня
7 м2
1 079 238 грн
Продам 1-комнатную квартиру в Малиновском районе. Квартира расположена на первом этаже двухэтажного дома. Общая площадь 30 м2. Кухня 7,8 м2. Правильная планировка. АГВ. Дом из ракушняка. Большой палисадник, хоз...
05.02.2026
Кімнат
1
Поверх:
1/2
Загальна
30 м2
Житлова
18 м2
Кухня
7.8 м2
1 070 604 грн
Популярне на сайті

ОдесаОдеса

КиївКиїв











