Продається 2-кімнатна квартира
Одеса, р-н Приморський, Лидерсовский бульв.
ID: 5297360
7 279 565 грн
(94 540 за м2)
Кіл-ть кімнат
2
Поверх
3/7
Тип стін
цегла
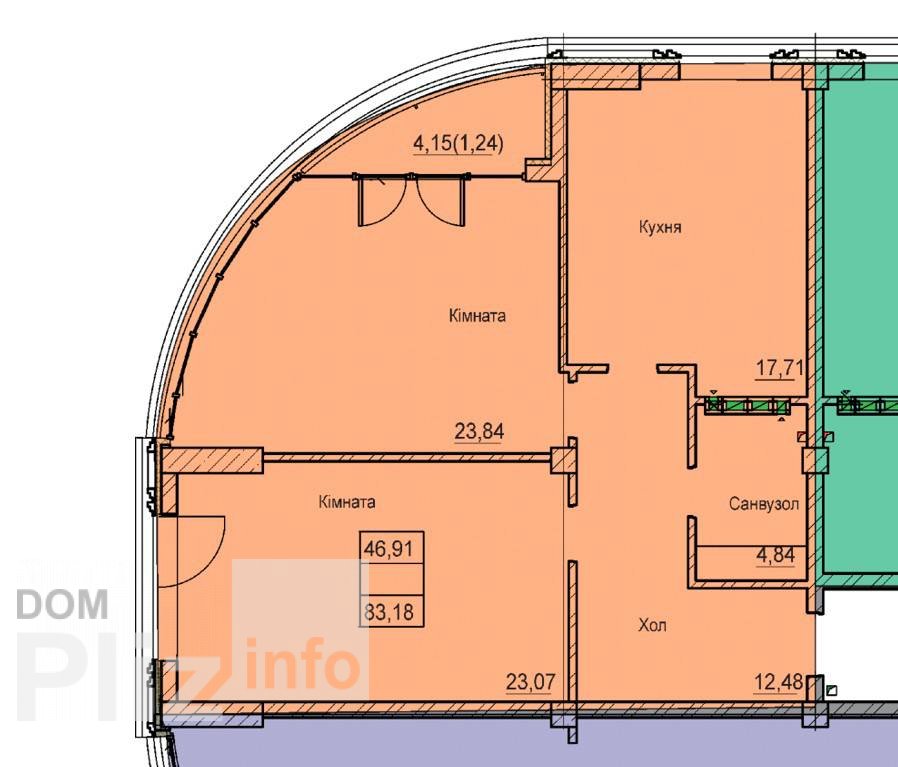
Загальна площа
77 м2
Житлова площа
40.5 м2
Площа кухні
18.9 м2
Стан
житлове
Тип нерухомості
Вторинний ринок
В продаже двухкомнатная квартира в престижном районе Одессы. Квартира расположена на третьем этаже, семиэтажного дома. Дом премиум класса. Место в подземном паркинге входит в стоимость. Вид с окон выходит на парк Шевченко. Панорамное остекление. Идеальная стяжка пола. Бронированная дверь. Зеленые парковые зона. Развитая инфраструктура.В шаговой доступности центр,кафе, море, пляж Ланжерон, Французский бульвар. Звоните, оперативный показ! Посредникам, просьба не беспокоить.
Оновлене: 07.05.2026
7 279 565 грн
(94 540 за м2)
166 000 $
(2 156 за м2)
АН ПРЕМЬЕР Преображенская, 49/51
посередник
Оновлене: 07.05.2026
Переглянуті
Предлагается к продаже 2-х комнатная квартира в Центре города. Качественный дом от компании Стикон. Квартира общей площадью 79 кв.м. Двусторонняя, 2 застеклённые лоджии, кухня-студия 13 кв.м., 2 раздельные прос...
07.05.2026
Кімнат
2
Поверх:
12/16
Загальна
76 м2
Житлова
35 м2
Кухня
13 м2
4 385 280 грн
Предлагается к продаже 2-комнатная квартира в новом доме бизнес-класса на проспекте Гагарина. .. Комнаты раздельные, гостиная 24 кв.м., спальня 16 кв.м., кухня, 13 кв.м. с выходом на балкон.2 раздельных санузла...
07.05.2026
Кімнат
2
Поверх:
8/25
Загальна
70.1 м2
Житлова
40.2 м2
Кухня
13.4 м2
3 069 696 грн
В продаже просторная 2-комнатная квартира в Kadorr City (60-я Жемчужина)Двусторонняя планировка, благодаря чему квартира наполнена естественным светом в течение дня.Закрытый комплекс с авторским благоустройство...
07.05.2026
Кімнат
2
Поверх:
7/24
Загальна
67.25 м2
Житлова
28 м2
Кухня
15 м2
3 815 194 грн
Срочно в продаже шикарная двухкомнатная квартира в самом сердце Аркадии. Выполнен дорогой ремонт, полная комплектация мебелью и техникой. Комфортный 6 этаж. Прямой вид на море из всех комнат. К морю 5 минут пеш...
07.05.2026
Кімнат
2
Поверх:
6/18
Загальна
67.7 м2
Житлова
38 м2
Кухня
15 м2
5 920 128 грн
Популярне на сайті

ОдесаОдеса

КиївКиїв






















