Продається 2-кімнатна квартира
Одеса, р-н Приморський, Еврейская ул.
ID: 5297395
7 554 663 грн
(88 878 за м2)
Кіл-ть кімнат
2
Поверх
2/8
Тип стін
цегла
Загальна площа
85 м2
Житлова площа
33 м2
Площа кухні
16 м2
Стан
житлове
Тип нерухомості
Вторинний ринок
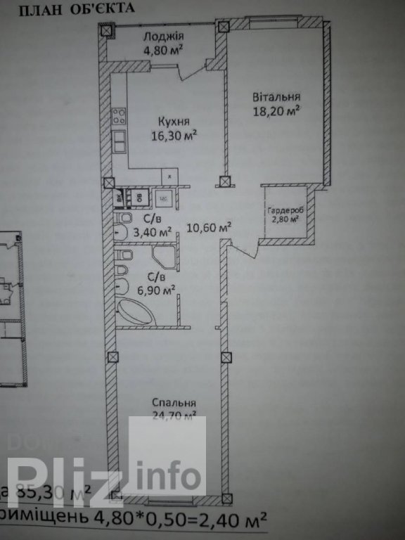
Новый жилой комплекс в сердце старой Одессы, в стороне от туристических маршрутов — привлекательный вариант для тех, кто ценит комфорт жизни в центре, но не любит лишней суеты и шума. Архитектурное решение и этажность «ЖК на Еврейской» соответствуют атмосфере этого района города. В паре минут ходьбы от дома — парк Шевченко и пляж Ланжерон, всего 10-15 минут займет прогулка до Приморского бульвара и Оперного театра. Квартира двусторонняя внутридворовая распланирована в 2 просторные комнаты 24,7 кв.м. и 18,2 кв.м., кухню 16,3 кв.м. с выходом на лоджию, раздельные санузлы и гардеробную. Долговечные фасады из стеклофибробетона - эксклюзивная технология в строительстве - экологическая безопасность и блокировка шума и влаги снаружи. Дом оснащён современными бесшумными лифтами. Есть подземный паркинг. Круглосуточная охрана и видеонаблюдение. Посредникам, просьба не беспокоить.
Створено : 05.02.2026
7 554 663 грн
(88 878 за м2)
175 000 $
(2 059 за м2)
АН ПРЕМЬЕР Преображенская, 49/51
посередник
Створено : 05.02.2026
Переглянуті
В продаже двухкомнатная квартира в новом доме на 9 станции Большого фонтана. Светлая квартира улучшенной планировки. Большие панорамные окна. Просторные комнаты, одна из них с эркером. Два балкона. Чудесный вид...
05.02.2026
Кімнат
2
Поверх:
12/16
Загальна
82.6 м2
Житлова
50 м2
Кухня
18 м2
3 669 408 грн
В продаже двухкомнатная квартира в новом сданном доме в престижной части центра Одессы. Кирпичный дом, комфортный третий этаж, панорамное остекление с прекрасным видом на город и продуманная современная планиро...
05.02.2026
Кімнат
2
Поверх:
3/6
Загальна
75 м2
Житлова
29 м2
Кухня
23 м2
4 748 645 грн
В продаже 2х комнатная квартира в ЖК Солнечный. По факту разделена на 2 квартиры: студию 24м с балконом и евродвушку 54м. Общий тамбур. В каждой из квартир свой санузел. Выполнен современный ремонт, натяжные по...
05.02.2026
Кімнат
2
Поверх:
3/17
Загальна
80 м2
Житлова
40 м2
Кухня
20 м2
5 612 035 грн
В продаже двухкомнатная квартира общей площадью 80 м. кв., двухсторонняя. В квартире 2 санузла, 2 комнаты и 2 балкона. Установлено индивидуальное отопление. Новый дом из кирпича, сданный, подключены все коммуни...
05.02.2026
Кімнат
2
Поверх:
8/10
Загальна
80 м2
Житлова
59 м2
Кухня
14 м2
3 885 255 грн
Популярне на сайті

ОдесаОдеса

КиївКиїв



















