Продається будинок
Одеса, р-н Хаджибейський, 3-й Моторный пер.
ID: 5297566
3 324 052 грн
(19 553 за м2)
Поверховість
1/2
Тип стін
цегла
Загальна площа
170 м2
Житлова площа
100 м2
Стан
житлове
Тип нерухомості
Будинок
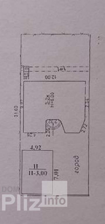
Предлагается к продаже дом в Малиновском районе города Одесса. Просторный 2 этажный дом с шикарной планировкой. На 1 этаже: кухня,прихожая, семейный санузел, котельная гардеробная и столовая/гостинная. На 2 этаже: 2 детские комнаты и родительская спальня с личной гардеробной, есть выход на балкон и выход на чердак (70 кв.м, где можно сделать еще один этаж). Дом и крыша полностью утеплены, заведены свет 3 фазы, вода, центральная канализация и газ. Во дворе уже стоит летный туалет и душ, гараж с камня под 1 машину. Ворота с автоматическим открыванием, дом можно обойти с 2 сторон к заднему двору там шикарное место для постройки беседки, и бассейна. Есть место для огорода, на заднем дворе уже растет слива, яблоки, груши, абрикосы.Возможна покупка в кредит от 10% годовых до 20 лет. Посредникам, просьба не беспокоить. ID объекта: 203865
Створено : 05.02.2026
3 324 052 грн
(19 553 за м2)
77 000 $
(453 за м2)
Премьер Сахарова, 24
посередник
Створено : 05.02.2026
Переглянуті
В продаже отличный дом 180кв.м.3 этажа, 4 уровня на 2 сотках земли. Дом с ремонтом и мебелью. Есть гараж, своя закрытая территория. В отличном районе 1 ст. Черноморской дороги. Все документы готовы к продаже. З...
05.02.2026
Поверховість:
1
Загальна
180 м2
5 180 340 грн
Продается двухэтажный дом в хорошем состоянии. С канализацией, водопроводом, газом и электричеством. На первом этаже две жилые комнаты, раздельный санузел, просторная кухня и выход в гараж. Гараж автоматический...
05.02.2026
Поверховість:
1
Загальна
168 м2
Житлова
37.8 м2
Кухня
18 м2
3 755 747 грн
Предлагается к продаже двухэтажный дом на Ленпоселке. Просторный и светлый общей площадью 180 кв.м. Состояние от строителей, заведен свет, сделана вся система отопления и разводка воды по дому, а также септик. ...
05.02.2026
Поверховість:
1
Загальна
180 м2
Житлова
100 м2
3 021 865 грн
Предлагается к продаже просторный и уютный дом на участке 10 соток — отличное решение для большой семьи или выгодной инвестиции. На участке расположены два дома. Основной двухэтажный кирпичный дом, утеплённый, ...
05.02.2026
Поверховість:
1
Загальна
170 м2
Житлова
120 м2
Кухня
120 м2
4 101 103 грн
Популярне на сайті

ОдесаОдеса

КиївКиїв































