Продається 2-кімнатна квартира
Одеса, р-н Київський, Тульская (Дерибасовка) ул.
ID: 5298910
1 942 628 грн
(34 690 за м2)
Кіл-ть кімнат
2
Поверх
10/16
Тип стін
цегла
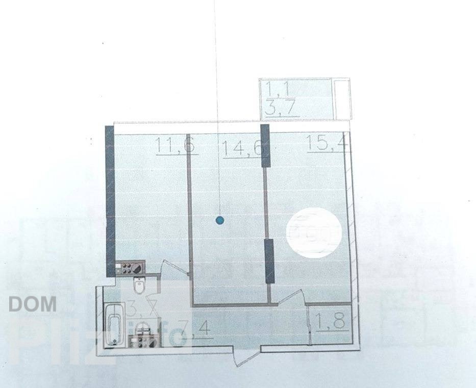
Загальна площа
56 м2
Житлова площа
30 м2
Площа кухні
12 м2
Стан
житлове
Тип нерухомості
Вторинний ринок
Продам в Одессе 2х комнатную на Тульской. На 10-м этаже 16-этажного нового дома. Общая площадь 56м2, жилая 30м2, кухня 12м2. Просторная прихожая 7м2. Санузел смежный. Балкон из комнаты. Гардеробная. Фирменные бронированные двери. Красивый пейзаж на закате. Светлая и просторная. Два лифта с подземным паркингом. Фасад двухкамерных окон КВЕ из жареного тонированного стекла. Закрытый охраняемый комплекс. Межквартирная шумоизоляция и шумо/термоизоляция полов. Рядом школа, бювет, детский сад, супермаркет, рынок. Удобное транспортное сообщение. Идеальный вариант для уютной и успешной жизни. Выгодная цена с торгом. Звоните. Смотрите. Покупайте. Посредникам, просьба не беспокоить.
Створено : 05.02.2026
1 942 628 грн
(34 690 за м2)
45 000 $
(804 за м2)
АН Премьер Королева, 33
посередник
Створено : 05.02.2026
Переглянуті
Квартира в частном секторе ближе к морю. В новом 4 х этажном доме. Свежий современный ремонт. Никто не жил. Полная комплектация мебелью и техникой. Холодильник, варочная панель, духовой шкаф, стиральная машина,...
05.02.2026
Кімнат
2
Поверх:
4/4
Загальна
50.6 м2
Житлова
24 м2
Кухня
20 м2
2 158 475 грн
Квартира в частном секторе ближе к морю. В новом 4 х этажном доме. Свежий современный ремонт. Никто не жил. Полная комплектация мебелью и техникой. Холодильник, варочная панель, духовой шкаф, стиральная машина,...
05.02.2026
Кімнат
2
Поверх:
3/4
Загальна
50.6 м2
Житлова
24 м2
Кухня
20 м2
2 158 475 грн
Предлагается к продаже двухкомнатная квартира . в курортном районе возле Монастыря. Две просторные комнаты . кухня. Большой закрытый двор, места для парковки машин, можно достроить второй этаж. По факту это час...
05.02.2026
Кімнат
2
Поверх:
1/1
Загальна
49.5 м2
Житлова
33 м2
Кухня
13 м2
1 597 272 грн
Продам двухкомнатную квартиру в уютном районе на Таирова с видом на море. Квартира расположена на 11-м этаже. Общая площадь 46 м.кв., две раздельные комнаты 13 и 11 м.кв, кухня 8 м.кв. с выходом на застекленный...
05.02.2026
Кімнат
2
Поверх:
11/11
Загальна
46 м2
Житлова
24 м2
Кухня
8.1 м2
1 899 458 грн
Популярне на сайті

ОдесаОдеса

КиївКиїв












