Продається 1-кімнатна квартира
Одеса, р-н Приморський, Еврейская ул.
ID: 5300245
3 952 845 грн
(80 179 за м2)
Кіл-ть кімнат
1
Поверх
2/9
Тип стін
цегла
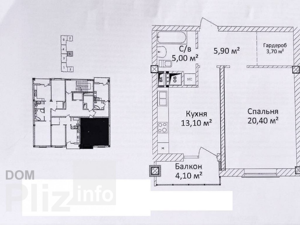
Загальна площа
49.3 м2
Житлова площа
20.4 м2
Площа кухні
13.1 м2
Стан
житлове
Тип нерухомості
Вторинний ринок
Продается просторная однокомнатная квартира в новом современном жилом комплексе премиум-класса. Для тех, кто мечтает жить в центре Одессы, но не представляет своего идеального гнездышка в старом фонде. Быть в историческом районе, однако в стороне от основных туристических маршрутов — идеальный вариант для тех, кто ценит удобство жизни в центре Одессы, но не любит лишнего шума и толпы. Престижный район в центре города. Несколько минут пешком до пляжа Ланжерон и парка Шевченко, Дерибасовской, Приморского бульвара и Оперного театра. Близкое расположение к важным социальным объектам – вокруг значительное количество детских садов, школ, магазинов, ресторанов, удобная транспортная развязка в любой район города. Квартира для Вашей комфортной жизни, и одновременно – привлекательный инвестиционный объект. Посредникам, просьба не беспокоить.
Оновлене: 24.03.2026
3 952 845 грн
(80 179 за м2)
90 000 $
(1 826 за м2)
АН ПРЕМЬЕР Преображенская, 49/51
посередник
Оновлене: 24.03.2026
Переглянуті
32980 Продам однокомнатную квартиру в жк Элегия парк. Сделан качественный ремонт по современным технологиям. Квартира укомплектована мебелью и бытовой техникой. Вид на море. Шаговая доступность до знаменитой Ар...
24.03.2026
Кімнат
1
Поверх:
25/25
Загальна
42 м2
Житлова
18 м2
Кухня
18 м2
3 996 766 грн
Предлагается к продаже квартира с продуманной планировкой: отдельная спальня и просторная кухня-гостиная. Ремонт производился «для себя», что гарантирует высочайшее качество материалов и внимание к каждой дета...
24.03.2026
Кімнат
1
Поверх:
11/24
Загальна
46 м2
Житлова
18 м2
Кухня
10 м2
3 206 197 грн
Прохоровский квартал — один из самых популярных ЖК в Одессе благодаря сочетанию близости к центру и современному комфорту. Предлагаем 1-комнатную квартиру в одном из самых лучших комплексов возле центра города...
24.03.2026
Кімнат
1
Поверх:
10/16
Загальна
41 м2
Житлова
18 м2
1 932 502 грн
32920 Продается квартира в жилом комплексе бизнес-класса Кандинский на Французском бульваре. Состояние от строителей позволяет воплотить ваши дизайнерские идеи. Панорамное остекление наполняет квартиру светом,...
21.03.2026
Кімнат
1
Поверх:
16/21
Загальна
46 м2
Житлова
13 м2
Кухня
23 м2
5 103 562 грн
Популярне на сайті

ОдесаОдеса

КиївКиїв













