Продається 1-кімнатна квартира
Одеса, р-н Приморський, Гагаринское плато
ID: 5300549
1 754 844 грн
(46 180 за м2)
Кіл-ть кімнат
1
Поверх
11/25
Тип стін
цегла
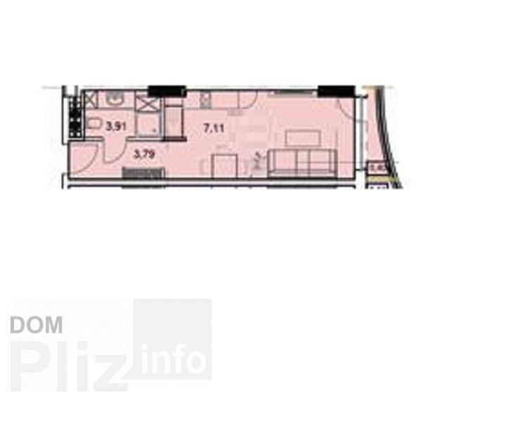
Загальна площа
38 м2
Житлова площа
17 м2
Площа кухні
12 м2
Стан
житлове
Тип нерухомості
Вторинний ринок
В продаже однокомнатная квартира в самой востребованной локации Одессы. Новый дом в Аркадии. Квартира студийной планировки, очень функциональная для современной жизни. На ширину всей квартиры есть просторная терраса, которая служит дополнительным пространством для отдыха. Квартира в самом модном доме. Второго такого нет во всей Одессе. Это когда вам для того, чтобы сходить в супермаркет, отправить почту, позаниматься спортом, посмотреть мировую кинопремьеру, поужинать в ресторане, поплавать в бассейне, погулять в парке не надо выходить на улицу. И это еще не весь список преимуществ. Лучше позвоните нам и мы при встрече расскажем остальные детали. Посредникам, просьба не беспокоить.
Оновлене: 26.03.2026
1 754 844 грн
(46 180 за м2)
39 999 $
(1 053 за м2)
АН Премьер Черняховского
посередник
Оновлене: 26.03.2026
Переглянуті
В продаже стильная квартира студийного типа в современном жилом комплексе на 5-й станции Большого Фонтана. Квартира с дизайнерским ремонтом, выполненным из качественных и дорогих материалов, продумана до мелоче...
26.03.2026
Кімнат
1
Поверх:
5/26
Загальна
32 м2
Житлова
24 м2
Кухня
6 м2
2 939 437 грн
24179. Продам 1-комнатную квартиру на ул. Еврейская. Располагается на среднем этаже нового комплекса от СК Будова. Состояние позволит новым собственникам сделать ремонт по индивидуальному проекту. Есть лоджия. ...
25.03.2026
Кімнат
1
Поверх:
3/7
Загальна
48 м2
Житлова
18 м2
Кухня
27 м2
3 860 754 грн
Продам просторную 1-комнатную квартиру в новом ЖК на Прохоровской. Идеальная планировка, большая застекленная панорамно лоджия на всю ширину квартиры с потрясающим видом на Центр города и Преображенский парк! Г...
26.03.2026
Кімнат
1
Поверх:
9/12
Загальна
44 м2
Житлова
18 м2
Кухня
11 м2
1 535 527 грн
Эксклюзивная однокомнатная квартира в Клубном доме. Исторический Центр города. Просторная квартира 46м2, 6/12 этаж, кухня студия и отдельная спальня с гардеробной. Большая застекленная панорамная лоджия с потря...
26.03.2026
Кімнат
1
Поверх:
6/12
Загальна
46 м2
Житлова
19 м2
Кухня
11 м2
1 403 910 грн
Популярне на сайті

ОдесаОдеса

КиївКиїв











