Продається 1-кімнатна квартира
Одеса, р-н Приморський, Прохоровская ул.
ID: 5300859
2 064 264 грн
(39 394 за м2)
Кіл-ть кімнат
1
Поверх
8/16
Тип стін
цегла
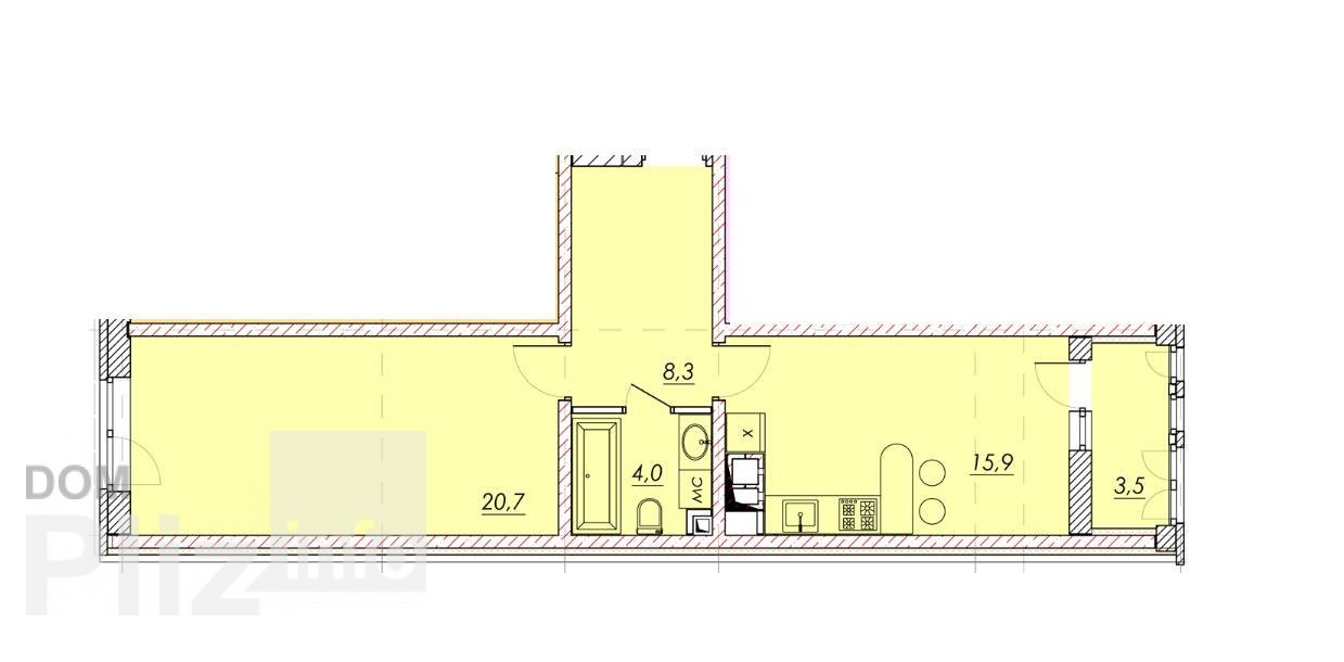
Загальна площа
52.4 м2
Житлова площа
21 м2
Площа кухні
16 м2
Стан
житлове
Тип нерухомості
Вторинний ринок
В продаже двусторонняя однокомнатная квартира в новом ЖК Прохоровский квартал. Общая площадь 52 метра, отдельная комната 21м и кухня 16м с выходом на лоджию. Современный и комфортабельный жилой комплекс с развитой инфраструктурой. Рядом есть все необходимые объекты для комфортной жизни: детские площадки, спортивные площадки, супермаркеты, кафе и рестораны. 10 минут езды до центра Одессы. Посредникам, просьба не беспокоить.
Оновлене: 24.03.2026
2 064 264 грн
(39 394 за м2)
47 000 $
(897 за м2)
АН ПРЕМЬЕР Преображенская, 49/51
посередник
Оновлене: 24.03.2026
Переглянуті
Предлагается к продаже квартира с продуманной планировкой: отдельная спальня и просторная кухня-гостиная. Ремонт производился «для себя», что гарантирует высочайшее качество материалов и внимание к каждой дета...
24.03.2026
Кімнат
1
Поверх:
11/24
Загальна
46 м2
Житлова
18 м2
Кухня
10 м2
3 206 197 грн
Продажа 1-но комнатной квартиры в Аркадии. Отличная функциональная планировка, общая площадь 60 м2. Квартира расположена на 13 этаже. Состояние квартиры после строителей позволит воплотить все ваши дизайнерские...
24.03.2026
Кімнат
1
Поверх:
13/23
Загальна
60 м2
Житлова
21 м2
Кухня
15 м2
3 425 799 грн
32920 Продается квартира в жилом комплексе бизнес-класса Кандинский на Французском бульваре. Состояние от строителей позволяет воплотить ваши дизайнерские идеи. Панорамное остекление наполняет квартиру светом,...
21.03.2026
Кімнат
1
Поверх:
16/21
Загальна
46 м2
Житлова
13 м2
Кухня
23 м2
5 103 562 грн
32919 Продается квартира в жилом комплексе бизнес-класса Кандинский на Французском бульваре. Состояние от строителей позволяет воплотить ваши дизайнерские идеи. Панорамное остекление наполняет квартиру светом,...
21.03.2026
Кімнат
1
Поверх:
16/21
Загальна
49 м2
Житлова
15 м2
Кухня
22 м2
5 349 517 грн
Популярне на сайті

ОдесаОдеса

КиївКиїв




























