Продається будинок
Лиманський район, Доброслав (Комінтернівське), Шевченко ул.
ID: 5301296
613 939 грн
(11 163 за м2)
Поверховість
1/1
Тип стін
цегла
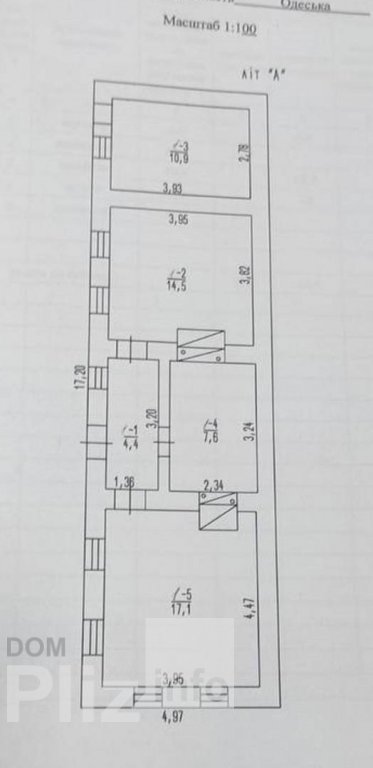
Загальна площа
55 м2
Житлова площа
32 м2
Стан
житлове
Тип нерухомості
Будинок
Предлагается к продаже дом. Одесская область пгт. Доброслав (Коминтерновское). Дом пригоден для круглогодичного проживания, площадь 55 квадратных метров. с индивидуальным газовым отоплением. Участок 18 соток. Улица асфальтирована. Развитая инфраструктура. За дополнительной информацией обращайтесь по телефону. Посредникам, просьба не беспокоить. ID объекта: 192361
Оновлене: 07.05.2026
613 939 грн
(11 163 за м2)
14 000 $
(255 за м2)
АН Премьер Добрвольского, 99
посередник
Оновлене: 07.05.2026
Переглянуті
Продам фасадное коммерческое помещение ( жилой дом с мастерской ) 406.3 кв.м. на 8.5 сотках в Доброславе. Помещения в отличном, рабочем состоянии. Есть помещение столовой, раздевалки, душевые для персонала и зо...
07.05.2026
Поверховість:
1
Загальна
58 м2
Житлова
17.9 м2
Кухня
10 м2
5 262 336 грн
Продам дом в Доброславе. Земельный участок 15,5 соток, приватизирован, на дом все документы. Дом одноэтажный, окна металлопласт, сделан косметический ремонт, санузел в доме, облицован современной плиткой. Во дв...
07.05.2026
Поверховість:
1
Загальна
58.4 м2
Житлова
26 м2
Кухня
9 м2
1 534 848 грн
Предлагается к продаже одноэтажный дом в Доброславе (Коминтерново). Общая площадь 61 кв.м, хорошее жилое состояние, дом теплый и светлый. Сделан косметический ремонт, есть необходимая мебель. Санузел в доме, ва...
07.05.2026
Поверховість:
1
Загальна
60 м2
1 052 467 грн
Популярне на сайті

ОдесаОдеса

КиївКиїв











