Продається 1-кімнатна квартира
Овідіопольський район, Авангард, Спрейса ул.
ID: 5301510
1 505 935 грн
(45 634 за м2)
Кіл-ть кімнат
1
Поверх
12/12
Тип стін
цегла
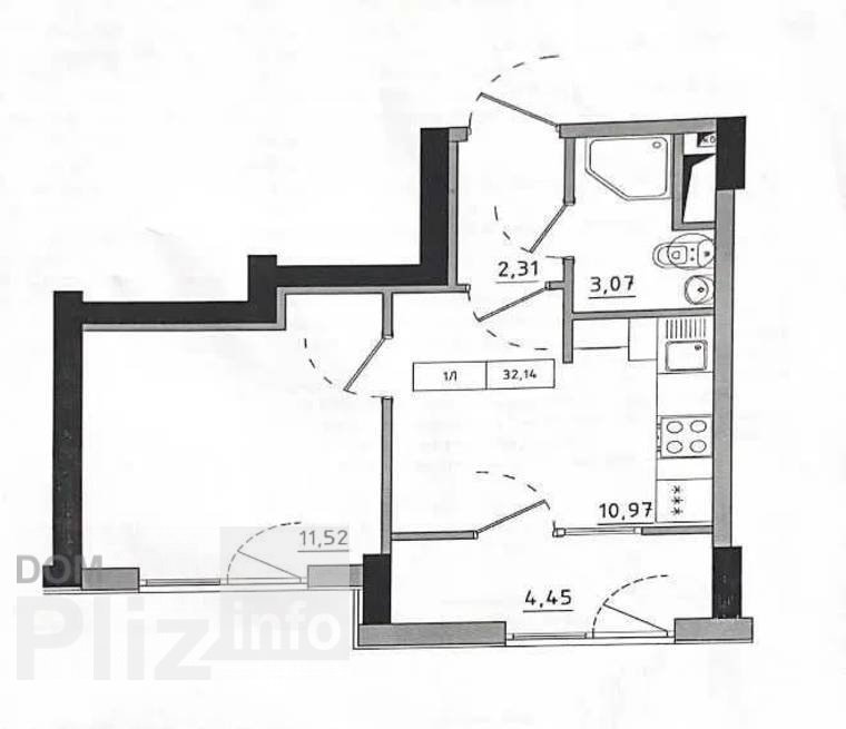
Загальна площа
33 м2
Житлова площа
15 м2
Стан
житлове
Тип нерухомості
Вторинний ринок
Однокомнатная квартира площадью 33 кв. на 12 этаже в 12 этажном доме. С ремонтом: бронированная входная дверь межкомнатная дверь натяжные потолки, ламинат и плитка в ванной радиаторы и бойлер отделка стен розетки, выключатели, светильники. Кухонный гарнитур сантехнику на кухне варочную поверхность кондиционеры в каждую комнату. Сдача дома по документам в 2024 Посредникам, просьба не беспокоить.
Оновлене: 09.02.2026
1 505 935 грн
(45 634 за м2)
35 000 $
(1 061 за м2)
Премьер Королева, 114
посередник
Оновлене: 09.02.2026
Переглянуті
Уютная и светлая квартира, расположена на 3 этаже. Со спальни вход на просторный балкон. Большая площадь кухни создает удобства для приготовления вкусных блюд. Огороженная придомовая территория, тихий и уютный ...
09.02.2026
Кімнат
1
Поверх:
3/5
Загальна
31 м2
Житлова
10 м2
Кухня
18 м2
1 118 694 грн
Продам 1-комнатную квартиру. Общая площадь 30м2. Расположена на 4 этаже. Квартира с ремонтом, встроеная кухня. Охраняемый закрытый двор с детскими площадками, прогулочная аллея с беседками, паркинг и отличная и...
09.02.2026
Кімнат
1
Поверх:
4/5
Загальна
29.78 м2
Житлова
9 м2
Кухня
17.68 м2
1 075 668 грн
Продам 1-комнатную квартиру. Общая площадь 24 м2. Большая кухня 14 м2. Расположена на 4 этаже 5-этажного дома. Квартира с ремонтом. Охраняемый закрытый двор с детскими площадками, прогулочная аллея с беседками,...
09.02.2026
Кімнат
1
Поверх:
4/5
Загальна
23.91 м2
Житлова
6.56 м2
Кухня
14.48 м2
925 074 грн
В продаже однокомнатная квартира студийного плана в новом клубном доме ЖК Кекс. Дом из красного кирпича. Индивидуальное отопление. Ремонт в светлых тонах. Хороший тихий район. Отличный вариант для проживання. З...
09.02.2026
Кімнат
1
Поверх:
5/5
Загальна
23.17 м2
Житлова
14 м2
Кухня
6 м2
1 075 668 грн
Популярне на сайті

ОдесаОдеса

КиївКиїв












