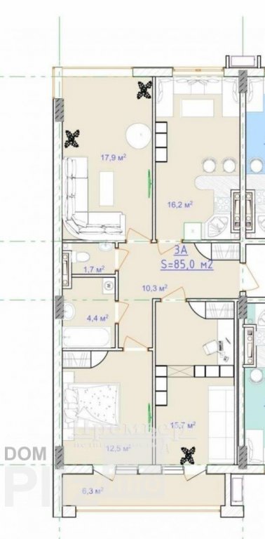
Продається 3-кімнатна квартира
Одеса, р-н Київський, Вильямса Ак. (ЖК Таировские Сады) ул.
ID: 5301527
3 025 843 грн
(35 598 за м2)
Кіл-ть кімнат
3
Поверх
10/15
Тип стін
цегла
Загальна площа
85 м2
Житлова площа
46 м2
Площа кухні
16 м2
Стан
житлове
Тип нерухомості
Вторинний ринок
В продаже квартира в ЖК Таировские Сады. Квартира с удобной планировкой, три раздельные комнаты и большая кухня. Комплекс построен из современных материалов. Хороший район для жизни, рядом супермаркеты (Сильпо, АТБ, Метро), Эпицентр, кафе, школа, садик, детские развивающие занятия. Красивая зеленая территория, парковка, закрытый двор. Посредникам, просьба не беспокоить.
Оновлене: 07.05.2026
3 025 843 грн
(35 598 за м2)
69 000 $
(812 за м2)
Премьер Королева, 114
посередник
Оновлене: 07.05.2026
Переглянуті
В продаже уютная, новая, видовая квартира на Фонтане. Прямой вид моря. Квартира двусторонняя, в шикарном жилом комплексе. Закрытый двор, охраняемая стоянка, подзменый паркинг. Во дворе магазины, салоны, кафе. Р...
07.05.2026
Кімнат
3
Поверх:
15/22
Загальна
92 м2
Житлова
40 м2
Кухня
18 м2
6 797 184 грн
Продаж 3 кімнатної квартири. Шелухіна (Олександра Невського) / Вузовський. Цегляний спецпроект. 2/10, загальна площа 85 кв.м., ГАЗ, індивідуальний газовий котел. 3 роздільні кімнати (4 кімнатніа перепланованіа ...
30.04.2026
Кімнат
3
Поверх:
2/10
Загальна
85 м2
Житлова
50 м2
Кухня
12 м2
3 069 696 грн
Предлагается к продаже трехкомнатная квартира в ЖК Альтаир. Квартира с дорогим и качественным ремонтом. Три отдельные комнаты, спальня, детская, гостиная, два санузла. Квартира полностью укомплектованная дорого...
07.05.2026
Кімнат
3
Поверх:
18/24
Загальна
85 м2
Житлова
45 м2
Кухня
18 м2
6 051 686 грн
В продаже просторная 3-комнатная квартира с террасой в жилом комплексе «Пространство на Дачной». Общая площадь — 92 кв.м. Удобная планировка включает три отдельные спальни, кухню 16 кв.м. с выходом на просторну...
07.05.2026
Кімнат
3
Поверх:
6/6
Загальна
92 м2
Житлова
30 м2
Кухня
16 м2
6 139 392 грн
Популярне на сайті

ОдесаОдеса

КиївКиїв

















