Продається 2-кімнатна квартира
Одеса, р-н Київський, Вильямса Ак. (ЖК Таировские Сады) ул.
ID: 5301691
2 849 600 грн
(36 487 за м2)
Кіл-ть кімнат
2
Поверх
15/15
Тип стін
цегла
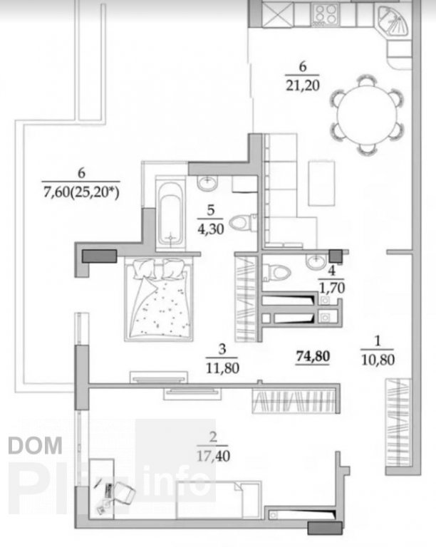
Загальна площа
78.1 м2
Житлова площа
30 м2
Площа кухні
21 м2
Стан
житлове
Тип нерухомості
Вторинний ринок
Предлагается к продаже большая двухкомнатная квартира с открытой террасой 25 метров. Новый современный жилой комплекс. Квартира очень светлая, теплая. Правильная планировка. Большая кухня студия 21 метр, две спальни и терраса с выходом из кухни. Редкое предложение. Не упустите свой шанс купить классную квартиру. Посредникам, просьба не беспокоить.
Оновлене: 30.03.2026
2 849 600 грн
(36 487 за м2)
65 000 $
(832 за м2)
Премьер Космонавтов, 32
посередник
Оновлене: 30.03.2026
Переглянуті
22933 Продам 2-х комнатную квартиру в ЖК Таировские Сады. Распланирована на 2 спальные комнаты, просторную кухню-студию, санузел и террасу. Отличный вариант для семьи. Состояние от строителей позволит воплотить...
28.03.2026
Кімнат
2
Поверх:
6/6
Загальна
70 м2
Житлова
30 м2
Кухня
30 м2
1 972 800 грн
33118. Продам 2-х комнатную квартиру на 16 ст. Б. Фонтана. Две лоджии с комнаты и кухни. Состояние под ваш дизайн. Облагороженная территория под видео наблюдением. Подземный 2-х уровневый паркинг. Детские площ...
27.03.2026
Кімнат
2
Поверх:
3/24
Загальна
69 м2
Житлова
31 м2
Кухня
11 м2
2 192 000 грн
Продается стильная просторная квартира с качественным ремонтом в стиле лофт, выполненным из дорогих материалов. Квартира двусторонняя, очень светлая и удобная для жизни. Планировка сохранена согласно документам...
30.03.2026
Кімнат
2
Поверх:
13/15
Загальна
78 м2
Житлова
52 м2
Кухня
11 м2
2 629 962 грн
31054 В продаже большая современная 2-х комнатная квартира в популярном районе - Жилмассив Радужный.Квартира двухсторонняя благодаря чему отлично проветривается и всегда наполнена естественным светом, теплая, с...
25.03.2026
Кімнат
2
Поверх:
13/14
Загальна
73 м2
Житлова
55 м2
Кухня
14 м2
2 630 400 грн
Популярне на сайті

ОдесаОдеса

КиївКиїв


















