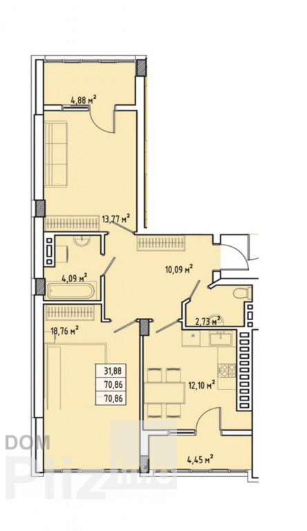
Продається 2-кімнатна квартира
Одеса, р-н Пересипський, Николаевская (Золотая Эра) ул.
ID: 5301787
2 808 846 грн
(37 957 за м2)
Кіл-ть кімнат
2
Поверх
11/12
Тип стін
цегла
Загальна площа
74 м2
Житлова площа
50 м2
Стан
житлове
Тип нерухомості
Вторинний ринок
В продаже просторная 2 комнатная квартира в новом, сданном доме. Общая площадь 74 кв.м, кухня с выходом на панорамную лоджию площадью 4,5 кв.м. Идеальное состояние от строителей, стяжка пола, металлопластиковое панорамное остекление. Развитый район, море в пешей доступности. Закрытая охраняемая территория с видеонаблюдением. Посредникам, просьба не беспокоить.
Оновлене: 15.05.2026
2 808 846 грн
(37 957 за м2)
63 900 $
(864 за м2)
Премьер Сахарова, 24
посередник
Оновлене: 15.05.2026
Переглянуті
Предлагается к продаже двухкомнатная квартира в новом доме. Общей площадью 67 кв.м, просторная, светлая, расположена на среднем 2 этаже. Большой балкон, соединяющий гостиную и кухню. Раздельный санузел, в ванно...
15.05.2026
Кімнат
2
Поверх:
2/8
Загальна
67 м2
Житлова
40 м2
Кухня
15 м2
1 758 276 грн
Продам шикарную двухкомнатную квартиру в Новом доме на Бочарова. В квартире выполнен качественный ремонт. Качественная мебель, которая частично остается. Хорошая планировка. Замечательное месторасположения. Зак...
15.05.2026
Кімнат
2
Поверх:
7/10
Загальна
68.4 м2
Житлова
46 м2
Кухня
10 м2
2 417 630 грн
Предлагается к продаже двухкомнатная квартира в новом жилом комплексе на Сахарова. Очень красивый вид на море. Общая площадь 65 кв.м, кухня 13 кв.м, раздельные комнаты, просторная прихожая. В квартире сделан со...
15.05.2026
Кімнат
2
Поверх:
12/25
Загальна
65.1 м2
Житлова
40 м2
Кухня
13.3 м2
3 076 983 грн
Предлагается к продаже двухкомнатная квартира плюс кладовка в новом жилом комплексе на Сахарова. Общая площадь 64.24кв.м. расположена на 6 этаже 9 этажного дома. Состояние от строителей, заведены все приборы уч...
15.05.2026
Кімнат
2
Поверх:
6/9
Загальна
64.24 м2
Житлова
26.2 м2
Кухня
27.57 м2
1 978 061 грн
Популярне на сайті

ОдесаОдеса

КиївКиїв

















