Продається будинок
Біляївський район, Наті, 3 линия
ID: 5301859
2 848 300 грн
(14 242 за м2)
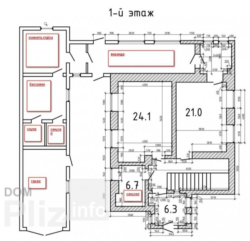
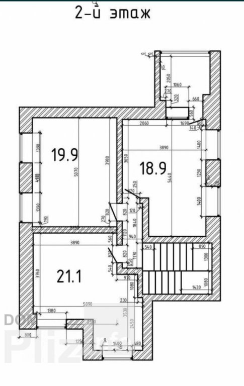
Поверховість
1/2
Тип стін
цегла
Загальна площа
200 м2
Житлова площа
120 м2
Площа кухні
15 м2
Стан
житлове
Тип нерухомості
Будинок
Продам 2х этажный дом в кооперативе «Глория» Нати. Дом общей площадью 200 кв.м, построен из кирпича, отопление 2х контурный котел, газ. В доме 5 комнат. Сделан капитальный соверменный ремонт в санузлах. Участок 5 соток огорожен капитальным забором. На территорие есть огород, а также садовые деревья. Посредникам, просьба не беспокоить. ID объекта: 189593
Оновлене: 23.03.2026
2 848 300 грн
(14 242 за м2)
65 000 $
(325 за м2)
Премьер Сахарова, 24
посередник
Оновлене: 23.03.2026
Переглянуті
В продаже дача возле Хаджибеевского лимана. Второй ряд от причала. Два этажа. На первом этаже кухня. На втором этаже две комнаты и балкон. Душ и Туалет раздельные, облицованные плиткой. Звоните, хорошему покупа...
23.03.2026
Поверховість:
1
Загальна
32 м2
525 840 грн
В продаже 2-х этажный частный дом на берегу лимана. Большой метраж позволяет его использовать как для жизни большой семьи, так и для бизнеса. Территория ограждена. На полу чистовая стяжка. Стены выровнены. Поср...
23.03.2026
Поверховість:
1
Загальна
458 м2
Житлова
400 м2
Кухня
32 м2
2 410 100 грн
В продаже двухэтажный дом (коттедж) на Находится прямо возле Лимана. Тип кровли: металлочерепица. Тип стен: газоблок. Отопление: собственная котельная. Коммуникации: электричество, вывоз отходов, газ, центральн...
23.03.2026
Поверховість:
1
Загальна
132 м2
Житлова
80 м2
Кухня
20 м2
3 505 600 грн
Продам дом- дачу в Нати. Дом двухэтажный, три раздельные светлые, просторные комнаты, санузел совместный, в доме сделанный современный ремонт в светлых тонах. Двор огражден забором и выложен плиткой, подьезд к ...
23.03.2026
Поверховість:
1
Загальна
60 м2
Житлова
42 м2
964 040 грн
Популярне на сайті

ОдесаОдеса

КиївКиїв





















