Продається 2-кімнатна квартира
Одеса, р-н Київський, Тульская (Дерибасовка) ул.
ID: 5301862
1 665 160 грн
(33 039 за м2)
Кіл-ть кімнат
2
Поверх
9/16
Тип стін
цегла
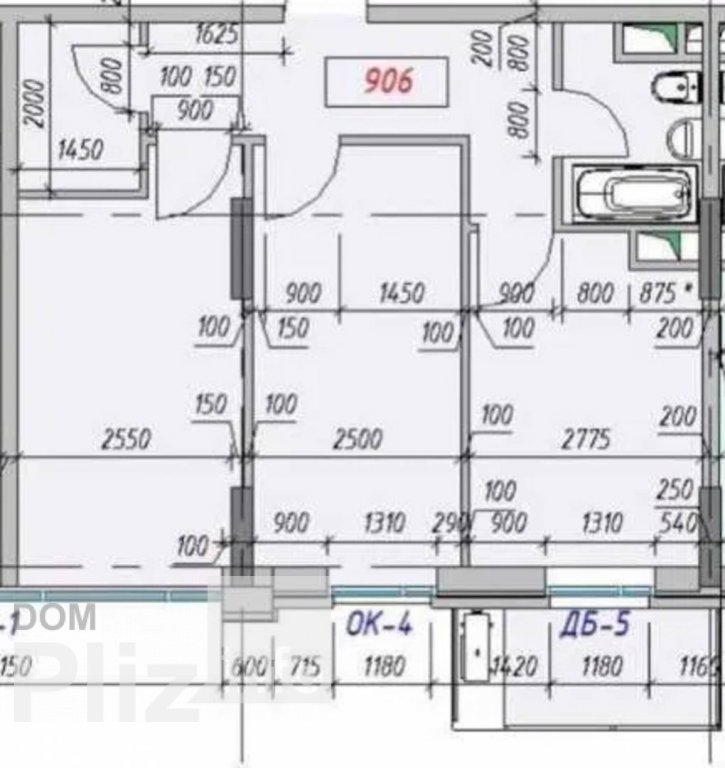
Загальна площа
50.4 м2
Житлова площа
26 м2
Площа кухні
10 м2
Стан
житлове
Тип нерухомості
Вторинний ринок
В продаже двухкомнатная квартира. Квартира восточной ориентации, а это означает, что всегда будет светло. Панорамные окна с видом на частный сектор Нет плотной застройки Удобная транспортная развязка Рядом много детских садов и школ. Круглосуточная охрана и видеонаблюдение, патрулирование территории и прилегающего сквера квартиры с дополнительной звукоизоляцией автономная подача электричества от дизель-генератора в случае проблем с электрикой. Посредникам, просьба не беспокоить.
Оновлене: 23.03.2026
1 665 160 грн
(33 039 за м2)
38 000 $
(754 за м2)
Премьер Королева, 114
посередник
Оновлене: 23.03.2026
Переглянуті
2-комнатная квартира на 3-й станции Люстдорфской дорогиПредлагается к продаже уютная 2-комнатная квартира, расположенная на 4 этаже 5-этажного дома в районе с отличной транспортной доступностью.Квартира светлая...
23.03.2026
Кімнат
2
Поверх:
4/5
Загальна
45.9 м2
Житлова
15 м2
1 752 800 грн
32931 Продам 2 кімнатну квартиру в Дачі Ковалевського.Розташована на 3/26 поверсі. Загальна площа 51 кв.м.Стан від забудовника.Море у кроковому доступі....
21.03.2026
Кімнат
2
Поверх:
3/26
Загальна
51 м2
Житлова
25 м2
Кухня
10 м2
2 580 998 грн
32925. Продам евродвушку в жилом комплексе «Калипсо» на 13-й станции Большого Фонтана — первая линия у моря, всего в 50 метрах от пляжа. Квартира с новым ремонтом, после которого никто не жил. Выполнена перепла...
21.03.2026
Кімнат
2
Поверх:
2/10
Загальна
55 м2
Житлова
35 м2
Кухня
15 м2
6 660 640 грн
32862 Продам двухкомнатную квартиру с ремонтом в 49 Жемчужине. Общая площадь — 59 кв.м. В квартире выполнен качественный капитальный ремонт, установлены сатиновые натяжные потолки, уложен ламинат. Пространство ...
21.03.2026
Кімнат
2
Поверх:
19/19
Загальна
59 м2
Житлова
27 м2
Кухня
12 м2
3 001 670 грн
Популярне на сайті

ОдесаОдеса

КиївКиїв


















