Продається 2-кімнатна квартира
Одеса, р-н Хаджибейський, Овидиопольская дорога
ID: 5302024
2 066 200 грн
(31 788 за м2)
Кіл-ть кімнат
2
Поверх
12/16
Тип стін
цегла
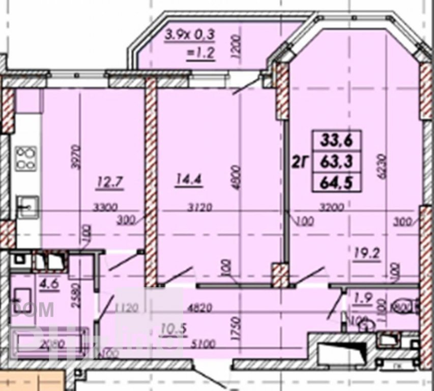
Загальна площа
65 м2
Житлова площа
34 м2
Площа кухні
13 м2
Стан
житлове
Тип нерухомості
Вторинний ринок
Предлагается к продаже просторная 2-комнатная квартира. Новый жилой комплекс Реал Парк Кирпичный дом. Общая площадь 65.6м.кв. Две раздельные спальни. Окна выходят на поле. В квартире металлопластиковое остекление, чистовая стяжка пола, установлены радиаторы, все приборы учета, качественная входная бронированная дверь. В доме 2 лифта Закрытая охраняемая территория. Прекрасный развитый район. Выгодная цена, звоните!Возможна покупка в кредит от 10% годовых до 20 лет. Посредникам, просьба не беспокоить.
Оновлене: 22.03.2026
2 066 200 грн
(31 788 за м2)
47 000 $
(723 за м2)
Премьер Королева, 114
посередник
Оновлене: 22.03.2026
Переглянуті
Продам в Одессе 2х комнатную квартиру на Бреусе от Стикона. 5й этаж/16-ти этажного нового дома. Общая площадь 75 м2, жилая 36 м2, кухня студия 18 м2 со стеклянной лоджией. Современный ремонт. 2х посторонняя...
22.03.2026
Кімнат
2
Поверх:
5/16
Загальна
75 м2
Житлова
36 м2
Кухня
25 м2
3 604 859 грн
32889. Продам 2-комнатную квартиру в ЖК RealPark. Общая площадь 65 кв.м Квартира односторонняя, смотрит на восток - весь город как на ладони. Вся светлая и с большими окнами. Очень хорошая планировка для жизни,...
21.03.2026
Кімнат
2
Поверх:
16/16
Загальна
65 м2
Житлова
35 м2
Кухня
19 м2
1 846 391 грн
460. Продам 2-х комнатную квартиру в новостройке ЖК "Малиновский", в доме есть генератор, сделан капитальный ремонт. Квартира просторная , двухсторонняя. Большой коридор , есть балкон. Ванная комната большая с...
21.03.2026
Кімнат
2
Поверх:
5/17
Загальна
75 м2
Житлова
30 м2
Кухня
25 м2
3 604 859 грн
Продается двухкомнатная квартира общей площадью 70 кв.м в сданном доме в районе Селекционного института. Квартира правильной планировки на 14-м этаже 17-ти этажного дома. Без ремонта. Балкон не застеклен, есть ...
22.03.2026
Кімнат
2
Поверх:
14/17
Загальна
69.3 м2
Житлова
36 м2
Кухня
12 м2
2 088 181 грн
Популярне на сайті

ОдесаОдеса

КиївКиїв
















