Продається 1-кімнатна квартира
Одеса, р-н Хаджибейський, Алексея Вадатурского ул. (Малиновского Маршала ул.)
ID: 5302369
1 079 238 грн
(31 930 за м2)
Кіл-ть кімнат
1
Поверх
1/4
Тип стін
цегла
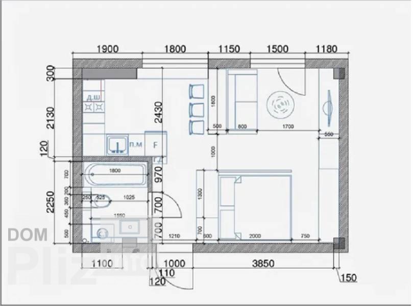
Загальна площа
33.8 м2
Житлова площа
20 м2
Площа кухні
10 м2
Стан
житлове
Тип нерухомості
Вторинний ринок
В продаже 1 комнатная квартира на 1-мэтаже 4х этажного дома в новом жилом комплексе Брусника. . Площадь 33.8 м. Плюс патио зона 16 м входит в стоимость. Квартира газифицирована утепленина.Сдача в ближайшее время. За подробной информацией звоните- расскажу. Посредникам, просьба не беспокоить.
Створено : 05.02.2026
1 079 238 грн
(31 930 за м2)
25 000 $
(740 за м2)
АН Премьер Королева, 70
посередник
Створено : 05.02.2026
Переглянуті
В продаже красивая и уютная квартира-студия с ремонтом. Дом новый, в квартире панорамное остекление, хороший ремонт из качественных материалов, теплые полы в ванной комнате и на кухне, лоджия застеклена. Террит...
05.02.2026
Кімнат
1
Поверх:
2/3
Загальна
30 м2
Житлова
30 м2
Кухня
15 м2
1 143 992 грн
Предлагаем Вашему вниманию достойную квартиру в тихом, прекрасном районе города. Выполнен капитальный ремонт, заменены все коммуникации. Квартира укомплектована мебелью и бытовой техникой. В санузле новая санте...
05.02.2026
Кімнат
1
Поверх:
4/5
Загальна
32 м2
Житлова
18 м2
Кухня
6 м2
1 510 933 грн
Продается комната в ухоженной коммуне. Чистая и аккуратная парадная, без посторонних запахов и влаги. Сама коммуна поддерживается в хорошем состоянии. Комната после капитального ремонта — выполнена замена прово...
05.02.2026
Кімнат
1
Поверх:
4/5
Загальна
24 м2
Житлова
14 м2
561 204 грн
В продаже квартира в новом доме ЖК Скай Сити на Варненской. Качество строительства по европейским стандартам. Утепление фасада. Установлена качественная бронированная дверь. Бесшумные лифты. Подземный и гостево...
05.02.2026
Кімнат
1
Поверх:
20/24
Загальна
25.5 м2
Житлова
15 м2
Кухня
6 м2
1 187 161 грн
Популярне на сайті

ОдесаОдеса

КиївКиїв










