Продається будинок
Овідіопольський район, Лиманка (Мизикевича), Мира ул.
ID: 5302396
6 610 860 грн
(13 773 за м2)
Поверховість
1/2
Тип стін
цегла
Загальна площа
480 м2
Житлова площа
250 м2
Стан
житлове
Тип нерухомості
Будинок
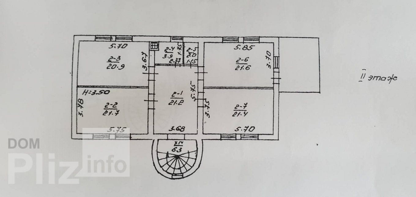
В продаже дом в Черноморке, 3 этажа, 4 уровня. Общая площадь 480 м.кв. Подвал мастерская, и котельная, участок 7 соток, отличное состояние. Гараж на 1 авто, двор с воротами под 4-6 авто, фруктовый сад. Все коммуникации, свет, газ, вода, выгребная яма. Дом можно использовать под бизнес (детский сад, школа, детские спорт, секции, центр реабилитации, дом престарелых, представительство, ветеринарная клиника). Посредникам, просьба не беспокоить. ID объекта: 184993
Оновлене: 17.05.2026
6 610 860 грн
(13 773 за м2)
150 000 $
(313 за м2)
АН Премьер Королева, 33
посередник
Оновлене: 17.05.2026
Переглянуті
Предлагается к продаже капитальный дом в Лиманке. Общая площадь 480 кв.м, 4 этажа. Возможно для проживания 2 семей или для арендного бизнеса. Дом с ремонтом, есть необходимые мебель и техника. Под домом подвал...
17.05.2026
Поверховість:
1
Загальна
480 м2
6 610 860 грн
Предлагается к продаже 3-х этажный просторный, теплый, уютный дом. Общей площадью 481кв.м. В доме 16-ть комнат. На участке 10 соток земли. Все коммуникации заведены в дом. Хорошее месторасположение. Красивая об...
17.05.2026
Поверховість:
1
Загальна
481 м2
Житлова
350 м2
Кухня
25 м2
22 036 200 грн
Популярне на сайті

ОдесаОдеса

КиївКиїв



























