Продається 3-кімнатна квартира
Одеса, р-н Київський, Тульская (Дерибасовка) ул.
ID: 5302751
3 157 402 грн
(49 028 за м2)
Кіл-ть кімнат
3
Поверх
7/16
Тип стін
цегла
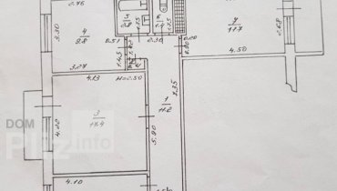
Загальна площа
64.4 м2
Житлова площа
44 м2
Площа кухні
12 м2
Стан
житлове
Тип нерухомості
Вторинний ринок
В продаже 3 комнатная квартира в новом доме бизнес класса на Левитана/Жукова. 7/16, 64.4/44/11,4, веерная планировка, комнаты раздельные, санузел совмещен, большой балкон из двух комнат и кухни, юго-западная сторона. Квартира идет с ремонтом от застройщика в современном стиле, пол плитка и ламинат, стены покраска, встроенная кухня, оборудованный санузел. Территория дома с круглосуточной охранной и видео наблюдением. Возможна продажа с подземным паркингом - удобное место, широкий заезд,мжно в дальнейшем оборудовать роллеты. Развитая инфраструктура, одесская прописка. Сдача дома 3кв. 22 года. Посредникам, просьба не беспокоить.
Оновлене: 07.05.2026
3 157 402 грн
(49 028 за м2)
72 000 $
(1 118 за м2)
АН Премьер Королева, 33
посередник
Оновлене: 07.05.2026
Переглянуті
Предлагается к продаже 3-комнатная квартира в центре Таирова. Дом «Югославка», удобный и востребованный район.Квартира расположена на 9 этаже 16-этажного дома. Общая площадь — 66,4 м². Планировка раздельная, уд...
07.05.2026
Кімнат
3
Поверх:
9/16
Загальна
66.4 м2
Житлова
43 м2
2 981 990 грн
Предлагается к продаже 3-комнатная квартира с ремонтом, перепланированная в кухню-студию и две спальни. Квартира расположена на 7 этаже 10-этажного дома. Общая площадь 71 м2. Кирпичный дом. С мебелью и техникой...
07.05.2026
Кімнат
3
Поверх:
7/10
Загальна
71 м2
Житлова
46 м2
Кухня
48 м2
3 332 813 грн
В продаже 3-комнатная квартира в Киевском районе. Средний 7 этаж, общая площадь 72 м2. Квартира двухсторонняя с двумя отдельными комнатами. Первая комната проходная-гостиная (есть просторная лоджия). Раздельный...
07.05.2026
Кімнат
3
Поверх:
7/9
Загальна
72 м2
Житлова
55 м2
Кухня
10 м2
2 631 168 грн
В продаже 3-комнатная квартира, 64 м², 3 этаж Предлагается светлая и уютная квартира в хорошем жилом состоянии – можно сразу заезжать и жить без дополнительных затрат. Квартира оборудована металлопластиковыми о...
07.05.2026
Кімнат
3
Поверх:
3/5
Загальна
64 м2
Житлова
64 м2
2 718 874 грн
Популярне на сайті

ОдесаОдеса

КиївКиїв









