Продається офісне приміщення
Одеса, р-н Приморський, Сабанский пер.
ID: 5302837
17 584 680 грн
(146 539 за м2)
Поверх
1/16
Тип стін
цегла
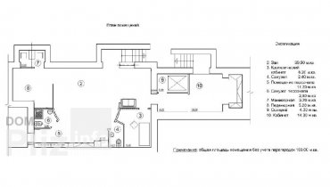
Загальна площа
120 м2
Стан
житлове
Тип нерухомості
Офісне приміщення
В продаже нежилое помещение в районе парка Шевченко. Отличное расположение, близость к морю , место с большим трафиком . Помещение с ремонтом, Проходное место, очень рентабельное преждложение, Звоните . Посредникам, просьба не беспокоить.
Оновлене: 22.03.2026
17 584 680 грн
(146 539 за м2)
400 000 $
(3 333 за м2)
АН ПРЕМЬЕР Преображенская, 49/51
посередник
Оновлене: 22.03.2026
Переглянуті
Продам коммерческое помещение под любой вид деятельности в новом доме. Общая площадь составляет 125кв.м. Выполнен современный ремонт. Панорамное и французское остекление. Видеонаблюдение. Хорошее месторасположе...
22.03.2026
Поверх:
2/18
Загальна
125.1 м2
Житлова
113.8 м2
Кухня
6.2 м2
7 693 298 грн
8402. . . Продам офисное помещение в бизнес центре в оживленном Центре. Общая площадь 120 кв.м. Сделан качественный ремонт. Очень престижный бизнес центр. Отлично подойдет под офис. Интенсивный пешеходный поток...
21.03.2026
Поверх:
1
Загальна
120 м2
10 550 808 грн
Предлагается к продаже коммерческое помещение свободного назначения в цокольном этаже жилого дома. Двустороннее, имеет широкий фасадный вход, большие окна. Высота 2,7м. Состояние от строителей. Заведены все ком...
22.03.2026
Поверх:
1/10
Загальна
111.1 м2
1 714 506 грн
Продается квартира в жилом фонде. Общая площадь 110 кв.м. Сделано 2 уровня. Есть охранная и пожарная сигнализации, видеонаблюдение. Официально отключено центральное отопление, установлено экономичное электричес...
22.03.2026
Поверх:
1/3
Загальна
110 м2
Кухня
15 м2
3 297 128 грн
Популярне на сайті

ОдесаОдеса

КиївКиїв













