Продається 1-кімнатна квартира
Одеса, р-н Київський, Жаботинского ул.
ID: 5303007
1 973 376 грн
(37 732 за м2)
Кіл-ть кімнат
1
Поверх
19/25
Тип стін
цегла
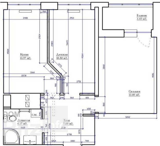
Загальна площа
52.3 м2
Житлова площа
17 м2
Площа кухні
23.7 м2
Стан
житлове
Тип нерухомості
Вторинний ринок
В продаже 1 комнатная квартира с видом на море и частный сектор. Состояние от строителей. Новый сданный дом с закрытой охраняемой территорией. Квартира с отличной планировкой, есть возможность сделать евродвушку как на фото. Из спальни выход на лоджию. Звоните! Посредникам, просьба не беспокоить.
Оновлене: 07.05.2026
1 973 376 грн
(37 732 за м2)
45 000 $
(860 за м2)
Премьер Королева, 114
посередник
Оновлене: 07.05.2026
Переглянуті
Элегантные апартаменты с прямым видом на море в Одессе Продается современная квартира с безупречным дизайнерским ремонтом, где каждый квадратный метр продуман для комфортной жизни. Главная особенность — панорам...
07.05.2026
Кімнат
1
Поверх:
11/26
Загальна
55.03 м2
Житлова
15 м2
Кухня
20 м2
5 700 864 грн
В продаже 1-комнатная квартира в современном жилом комплексе «Посейдон», ул. Дача Ковалевского, Одесса. Комплекс с закрытой охраняемой территорией, консьерж-сервисом и комфортной средой для жизни.Квартира распо...
07.05.2026
Кімнат
1
Поверх:
3/26
Загальна
49 м2
Житлова
15 м2
Кухня
18 м2
3 508 224 грн
Програми / Ваучер / Сертифікат. Продаж однокімнатної квартири в цегляному будинку. Академіка Вільямса / Люстдорфська дорога. 2004 р.б.. 54 кв.м.. Кімната 25 кв.м., кухня 12 кв.м.. з виходом на балкон. Закрита т...
07.05.2026
Кімнат
1
Поверх:
10/15
Загальна
54 м2
Житлова
25 м2
Кухня
12 м2
2 280 346 грн
Современная квартира в ЖК «Посейдон» с дизайнерским ремонтом Характеристики квартиры: Площадь — 46 м² Квартира полностью укомплектована мебелью и техникой Выполнен качественный дизайнерский ремонт Продуманная п...
07.05.2026
Кімнат
1
Поверх:
11/26
Загальна
46 м2
Житлова
20 м2
3 946 752 грн
Популярне на сайті

ОдесаОдеса

КиївКиїв













