Продається 1-кімнатна квартира
Одеса, р-н Приморський, Леси Украинки (Гагарина) просп.
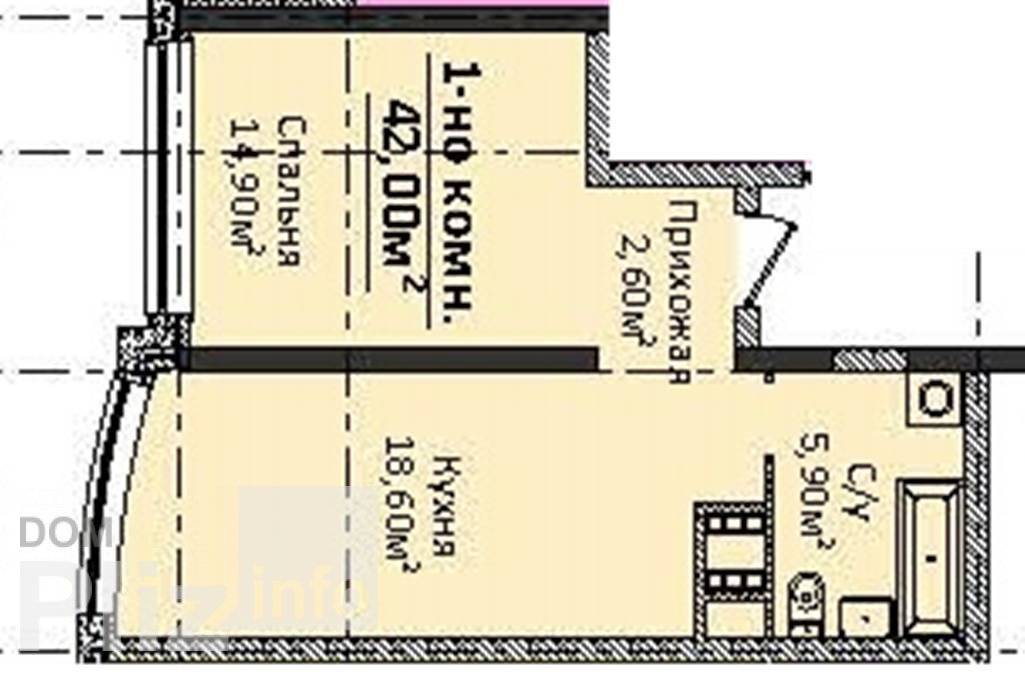
ID: 5303047
2 590 170 грн
(61 671 за м2)
Кіл-ть кімнат
1
Поверх
12/25
Тип стін
цегла
Загальна площа
42 м2
Житлова площа
20 м2
Площа кухні
15 м2
Стан
житлове
Тип нерухомості
Вторинний ринок
Предлагается к продаже 1-но комнатная квартира, общей площадью 42 кв.м. с панорамным остеклением в новом комплексе бизнес класса на проспекте Гагарина. 12 этаж 25-ти этажного дома. Красивый вид на город (не во двор). Система Умный дом . Закрытая территория, подземный паркинг. Море, пляжи в пешей доступности. Посредникам, просьба не беспокоить.
Оновлене: 05.02.2026
2 590 170 грн
(61 671 за м2)
60 000 $
(1 429 за м2)
АН ПРЕМЬЕР Преображенская, 49/51
посередник
Оновлене: 05.02.2026
Переглянуті
Продажа 2-х квартиры в Приморском районе! Общая площадь 32 кв. м. Смежные комнаты. Дворовая. В квартире есть МПО, Приборы учета. Балкон не застеклен. По близасти находятся учебные заведения, супермаркеты. Отлич...
05.02.2026
Кімнат
1
Поверх:
5/5
Загальна
32 м2
Житлова
23 м2
Кухня
6.5 м2
1 359 839 грн
Продам однокомнатную квартиру на 10-й ст. Большого Фонтана. Состояние – под ремонт. Свой вход с палисадником. Электроотопление закрытая веранда. Санузел совмещен. Отличное месторасположение, до моря 3 минуты пе...
05.02.2026
Кімнат
1
Поверх:
1/1
Загальна
36 м2
Житлова
28 м2
Кухня
6 м2
1 813 119 грн
Предлагается к продаже 1 комнатная квартира, общей площадью 35 кв.м. Мраморные подоконники и камин. Подсобное помещение 8 кв.м. Санузел совмещен, современно облицован. Стены окрашены, пол паркет. Окна решетки. ...
05.02.2026
Кімнат
1
Поверх:
1/3
Загальна
32 м2
Житлова
22 м2
1 942 628 грн
2 этаж 3-х этажного дома. Общая площадь квартиры 36 кв.м. Квартира в центре города на Дерибасовской. рядом торговый центр «Европа» ресторан быстрого питания «Макдональс. Оперный театр, ремтораны, клубы. В кварт...
05.02.2026
Кімнат
1
Поверх:
2/3
Загальна
34 м2
Житлова
18 м2
Кухня
12 м2
4 316 950 грн
Популярне на сайті

ОдесаОдеса

КиївКиїв











