Продається 2-кімнатна квартира
Одеса, р-н Приморський, Солнечная ул.
ID: 5303379
2 637 414 грн
(33 813 за м2)
Кіл-ть кімнат
2
Поверх
17/17
Тип стін
цегла
Загальна площа
78 м2
Житлова площа
50 м2
Площа кухні
20 м2
Стан
житлове
Тип нерухомості
Вторинний ринок
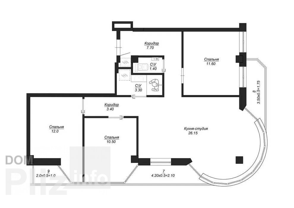
В продаже 2-конатная квартира в Приморском районе на ул.Солнечной. Шикарная планировка с раздельными комнатами и красивым эркером с французским остеклением, просторным балконом. Квартира площадью 78 кв.м. Двухсторонняя, очень светлая и уютная. Из окон открывается прекрасный вид на город и море. Рядом центр инфраструктуры - школы, дет сады, магазины, Парк Победы, Аркадия. Звоните!Возможна покупка в кредит от 10% годовых до 20 лет. Посредникам, просьба не беспокоить.
Оновлене: 16.05.2026
2 637 414 грн
(33 813 за м2)
60 000 $
(769 за м2)
АН Премьер Черняховского
посередник
Оновлене: 16.05.2026
Переглянуті
Продам двухкомнатную квартиру в центре города в непосредственной близости к улице Дерибасовская. Хорошая планировка. Просторная 12-метровая кухня, гостиная комната - 26 кв. метров, спальная - 15.6 кв. метров, г...
16.05.2026
Кімнат
2
Поверх:
1/3
Загальна
68.2 м2
Житлова
41.3 м2
Кухня
12 м2
3 076 983 грн
В продаже двухкомнатная квартира в новом доме от надежного застройщика Кадор Групп. Общей площадью 70 квадратных метров. В квартире выполнен дизайнерский ремонт, полностью укомплектована всей необходимой мебель...
16.05.2026
Кімнат
2
Поверх:
16/24
Загальна
70 м2
Житлова
48 м2
Кухня
12 м2
6 813 320 грн
Предлагается к продаже 2-х комнатная квартира в элитном коттеджном городке на Французском бульваре. Это комфорт, аристократичность и эстетика. Общая площадь 85 м2. Изысканная кухня-столовая площадью 18 м², прос...
16.05.2026
Кімнат
2
Поверх:
1/4
Загальна
84.7 м2
Житлова
48.4 м2
Кухня
17.6 м2
10 989 225 грн
Просторная и уютная 2-комнатная квартира в престижном районе Аркадии. Квартира расположена на 8 этаже 12-этажного дома и имеет общую площадь 69,1 м². Удобная раздельная планировка включает две светлые комнаты, ...
16.05.2026
Кімнат
2
Поверх:
8/12
Загальна
69.1 м2
Житлова
36.7 м2
Кухня
14.1 м2
4 835 259 грн
Популярне на сайті

ОдесаОдеса

КиївКиїв









