Продається 0-кімнатна квартира
Чорноморськ, Хантадзе пер.
ID: 5303538
1 886 507 грн
(43 170 за м2)
Поверх
8/8
Тип стін
цегла
Загальна площа
43.7 м2
Стан
житлове
Тип нерухомості
Вторинний ринок
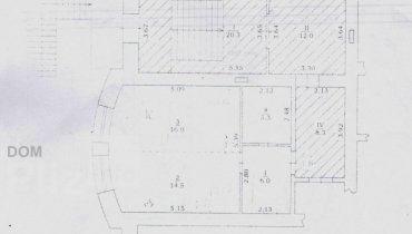
Продается студия общая площадь 43,7 м.кв. Свободная планировка, санузел смежный 4,2 м.кв. Комната 26,4 м.кв., кухня 9,2 м.кв., кладовка 2,3 м.кв. Есть балкон, французский стиль. Состояние от строителей. Уже проведено электричество. Отопление центральное. Электроплиты. Высота потолков 3,60 м. Чистый подъезд, лифт. Дом сдан. Во дворе сделана парковка. Рядом море. Студия пригодна как для жизни круглый год и как отличное коммерческое предложение под аренду! Возможна рассрочка. Посредникам, просьба не беспокоить.
Оновлене: 05.02.2026
1 886 507 грн
(43 170 за м2)
43 700 $
(1 000 за м2)
Премьер Данченко, 8
посередник
Оновлене: 05.02.2026
Переглянуті
В продаже квартира студийного типа в новом, кирпичном доме. Общая площадь 51 кв.м., светлая, высокие потолки. Сделан свежий ремонт в теплых тонах, установлена кухня, встроенные шкафы, облицован санузел. Хорошие...
05.02.2026
Поверх:
1/8
Загальна
51 м2
1 899 458 грн
Продается студия общая площадь 33,8 м.кв. Свободная планировка, санузел смежный 5,6 м.кв. Комната 16,9 м.кв., кухня 11,3 м.кв. Состояние от строителей. Уже проведено электричество. Отопление центральное. Электр...
05.02.2026
Поверх:
6/8
Загальна
33.8 м2
1 459 129 грн
Продается студия общая площадь 38,5 м.кв. Свободная планировка, санузел смежный 3,5 м.кв. Комната 22,6 м.кв., коридор 12,4 м.кв. Состояние от строителей. Уже проведено электричество. Отопление центральное. Элек...
05.02.2026
Поверх:
6/8
Загальна
38.5 м2
1 662 026 грн
Продается студия общая площадь 39,4 м.кв. Свободная планировка, санузел смежный 5 м.кв. Комната 23,9 м.кв., кухня 10,5 м.кв. Состояние от строителей. Уже проведено электричество. Отопление центральное. Электроп...
05.02.2026
Поверх:
5/8
Загальна
39.4 м2
1 530 790 грн
Популярне на сайті

ОдесаОдеса

КиївКиїв












