Продається офісне приміщення
Одеса, р-н Пересипський, Николаевская дорога
ID: 5304142
17 267 800 грн
(11 512 за м2)
Поверх
2/2
Тип стін
цегла
Загальна площа
1500 м2
Житлова площа
1500 м2
Площа кухні
100 м2
Стан
житлове
Тип нерухомості
Офісне приміщення
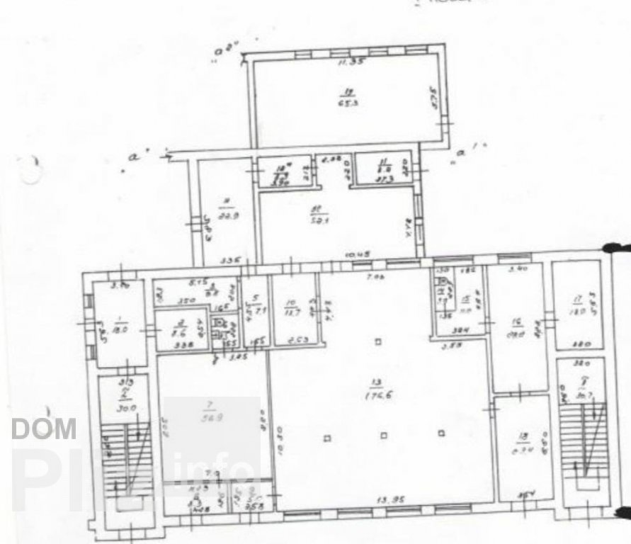
Продается готовый бизнес 2-х этажное здание.Общей площадью 1500 м,кв. Здание с торговым залом, СТО и фитнес залом.На 1-м этаже расположен : автосалон, цирюльня, магазин, СТО.На 2-м этаже: зал бокса, зал борьбы, танц зал и классы. В 5-и минутах ходьбы море. Звоните! Посредникам, просьба не беспокоить.
Оновлене: 05.02.2026
17 267 800 грн
(11 512 за м2)
400 000 $
(267 за м2)
АН Премьер Днепродорога 108
посередник
Оновлене: 05.02.2026
Переглянуті
Продам коммерческое помещение свободного назначения, общая площадь 805 км.м., в 2 этажа, метало пластиковое остекление, все коммуникации, фасадный вход, бронированная входная дверь, контрольно-пропускной пункт....
05.02.2026
Поверх:
2/2
Загальна
805 м2
9 497 290 грн
Продам коммерческое помещение общей площадью 137 кв.м. 2 отдельные квартиры переведены в нежилой фонд. Современный ремонт, металлопластиковое остекление, пол-плитка и ламинат. Стены моющиеся. 5 комнат, 3 коридо...
05.02.2026
Поверх:
1/10
Загальна
140 м2
10 792 375 грн
Продается офис на проспекте Добровольского. Общая площадь 80 кв.м. Под офис, нежилой фонд, зарегистрирован как офис. Есть проект интернет клуба и торгового центра, АОГВ. Состояние под ремонт, торец дома. Посред...
05.02.2026
Поверх:
1/9
Загальна
80 м2
2 374 323 грн
В продаже комерческое помещение 96 кв.м. свой отдельный вход. Есть возможность пристройки. Пять окон - застеклены МПО, металлические решетки. Хорошая входная дверь. Хорошая транспортная развязка. Возможен небол...
05.02.2026
Поверх:
1/9
Загальна
96 м2
2 158 475 грн
Популярне на сайті

ОдесаОдеса

КиївКиїв










