Продається 1-кімнатна квартира
Одеса, р-н Приморський, Вишни Остапа ул.
ID: 5304933
1 183 140 грн
(25 173 за м2)
Кіл-ть кімнат
1
Поверх
1/2
Тип стін
цегла
Загальна площа
47 м2
Житлова площа
25 м2
Площа кухні
15 м2
Стан
житлове
Тип нерухомості
Вторинний ринок
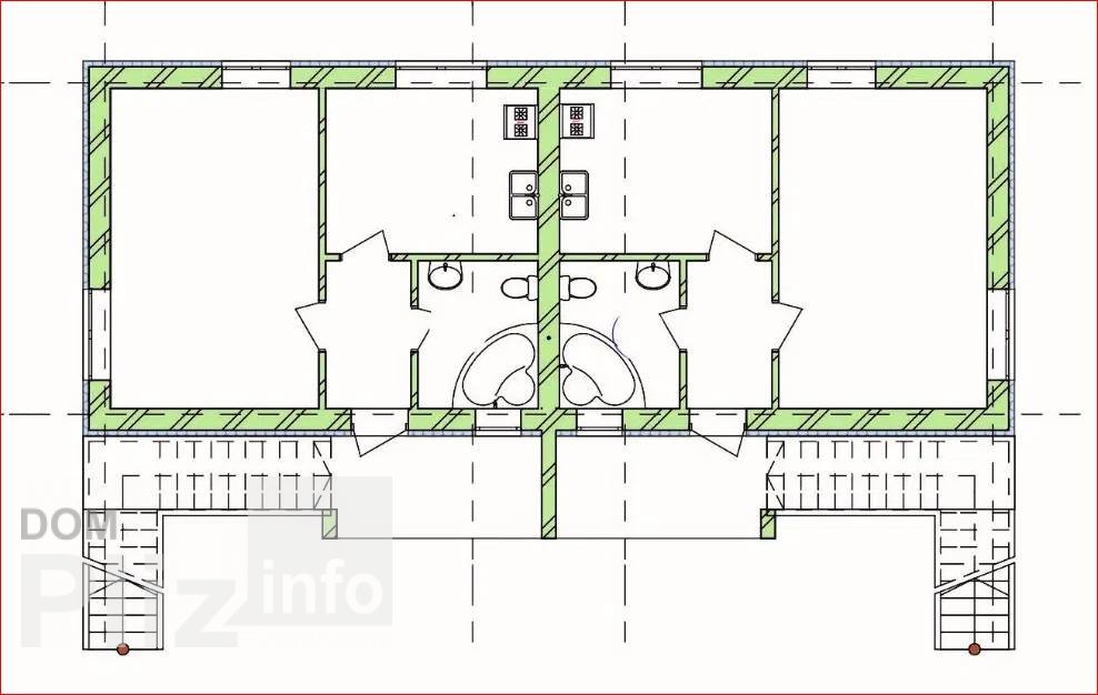
Продам 1к квартиру в 2х этажном малоквартирном доме на Заставе. Общая площадь 47 кв м. Дом построен из красного энергоэффективного кирпича, толщина стен 60 см. Стены утеплены фасадной минеральной ватой и отделаны декоративной штукатуркой *короед*. Установлены качественные металло-пластиковые окна, качественная входная дверь. Подведены все коммуникации. Городская канализация (собственная ветка). Есть зона барбекю. Двор огорожен забором. Во дворе тротуарная плитка. Есть место для парковки авто. Дом сдан в эксплуатацию, есть Гос Акт на землю. Возможно объединение с соседними квартирами. Хорошая транспортная развязка, Рядом школа, базар, аптека, садик. Возможна поэтапная оплата.Возможна покупка в кредит от 10% годовых до 20 лет. Посредникам, просьба не беспокоить.
Оновлене: 23.03.2026
1 183 140 грн
(25 173 за м2)
27 000 $
(574 за м2)
АН ПРЕМЬЕР Преображенская, 49/51
посередник
Оновлене: 23.03.2026
Переглянуті
Предлагается к продаже квартира с продуманной планировкой: отдельная спальня и просторная кухня-гостиная. Ремонт производился «для себя», что гарантирует высочайшее качество материалов и внимание к каждой дета...
23.03.2026
Кімнат
1
Поверх:
11/24
Загальна
46 м2
Житлова
18 м2
Кухня
10 м2
3 198 860 грн
Прохоровский квартал — один из самых популярных ЖК в Одессе благодаря сочетанию близости к центру и современному комфорту. Предлагаем 1-комнатную квартиру в одном из самых лучших комплексов возле центра города...
23.03.2026
Кімнат
1
Поверх:
10/16
Загальна
41 м2
Житлова
18 м2
1 928 080 грн
Предлагается к продаже комната в коммунальной квартире, отделенная блоком, с собственными кухней и санузлом в центре Одессы. Комната светлая, просторная с двумя окнами и высокими потолками. Установлены металлоп...
23.03.2026
Кімнат
1
Поверх:
2/3
Загальна
37.8 м2
Житлова
28 м2
Кухня
6.4 м2
1 840 440 грн
32927. Продам однокомнатную квартиру на 9 станции Большого Фонтана в жк Поющий Фонтан. Удобный этаж. Общая площадь — 54 кв.м. Состояние от строителей, что позволяет оформить интерьер по своему вкусу. Продуманна...
21.03.2026
Кімнат
1
Поверх:
4/17
Загальна
54 м2
Житлова
20 м2
Кухня
15 м2
1 730 890 грн
Популярне на сайті

ОдесаОдеса

КиївКиїв












