Продається будинок
Лиманський район, Фонтанка, Соборная ул.
ID: 5305745
2 637 702 грн
(28 061 за м2)
Поверховість
1/2
Тип стін
цегла
Загальна площа
94 м2
Площа кухні
29 м2
Стан
житлове
Тип нерухомості
Будинок
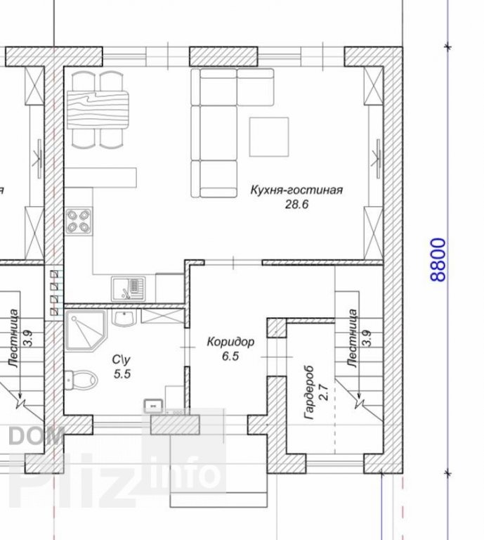
Продается Таунхаус в Фонтанке. Площадь участка 2 сотки .На заднем дворе площадь 45 м2.Общая площадь таунхауса 94 м2. На первом этаже санузел 6м2,кухня-гостиная 29 м2, гардеробная 3 м2 .На втором этаже две комнаты(15 м2 и 13 м2 ).санузел 6 м2. Внутри состояние таунхауса от строителей.Но по желанию покупателей можно выполнить внутренние работы (соответственно за другую цену).Фасадные работы выполнены все. Посредникам, просьба не беспокоить. ID объекта: 130350
Оновлене: 22.03.2026
2 637 702 грн
(28 061 за м2)
60 000 $
(638 за м2)
Премьер Сахарова, 24
посередник
Оновлене: 22.03.2026
Переглянуті
Предлагается к продаже дом в процессе строительства в Фонтанке. Общая площадь 100 кв.м, высота потолков 3 метра. Полностью автономный дом ,солнечные панели (водяные полы) есть резерв воды 500 литров. Выгребная ...
22.03.2026
Поверховість:
1
Загальна
100 м2
8 132 915 грн
Продам дом в первой Фонтанке. Дом одноэтажный, общей площадью 103.5 квадратных метров. Дом в стиле лофт. Большая кухня, гостинная, две спальни, совмещенный санузел. В комнатах осталось поклеить обои. Земельный...
22.03.2026
Поверховість:
1
Загальна
103 м2
Житлова
65 м2
4 396 170 грн
Продам дом в с Фонтанка. 4.8 сот земли. Свободная планировка. Заведены все коммуникации ( свет, вода, канализация). Терраса. Стены отшпаклеваны. Входная дорогая дверь. Крыша - металочерепица. Дом утеплен и ошту...
22.03.2026
Поверховість:
1
Загальна
100 м2
Житлова
80 м2
Кухня
20 м2
3 956 553 грн
Продаются 2 дома по 90 метров от строителей, двух уровневые, примыкающие друг к другу общей стеной , зеркальной планировки. Продается либо одна часть,либо весь за 80 000 тыс. Постройки 2010г.,ни одной трещинки ...
22.03.2026
Поверховість:
1
Загальна
90 м2
Кухня
19 м2
1 758 468 грн
Популярне на сайті

ОдесаОдеса

КиївКиїв









