Продається 2-кімнатна квартира
Одеса, р-н Київський, Цветочная ул.
ID: 5305764
2 524 552 грн
(43 170 за м2)
Кіл-ть кімнат
2
Поверх
3/5
Тип стін
цегла
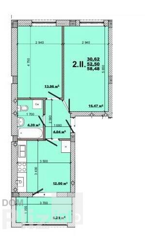
Загальна площа
58.48 м2
Житлова площа
31 м2
Стан
житлове
Тип нерухомості
Вторинний ринок
Продаётся квартира на 9 ст. Большого Фонтана. Прекрасный малоквартирный дом с закрытой, охраняемой территорией. Две просторные (раздельные) комнаты, квадратная кухня. Их кухни выход на просторную лоджию 6,5 кв. м. (за счет лоджии можно увеличить кухню). Квартира двухсторонняя. Отличное месторасположение, близость к морю, удобная транспортная развязка. Отличный вариант под сдачу и для проживания! Всегда рады предложить лучшее!!!Возможна покупка в кредит от 10% годовых до 20 лет. Посредникам, просьба не беспокоить.
Оновлене: 05.02.2026
2 524 552 грн
(43 170 за м2)
58 480 $
(1 000 за м2)
Премьер Королева, 114
посередник
Оновлене: 05.02.2026
Переглянуті
Продается 2-комнатная квартира. Общая площадь 66 кв.м. Перепланировали в офисное помещение. Две комнаты 10 м и 10 м пристроены с выходом на фасад ул. Королева, под ними благоустроенный подвал. Все узаконено. Мн...
05.02.2026
Кімнат
2
Поверх:
1/9
Загальна
66 м2
Житлова
30 м2
2 590 170 грн
В продаже двухкомнатная квартира на Таирова Киевский район. Общая площадь 60 кв.м. Кухня 9 кв. м. Санузел совмещен. Индивидуальное отопление АОГВ. Установлен бойлер. Квартира под ремонт. Хорошая транспортная ра...
05.02.2026
Кімнат
2
Поверх:
1/1
Загальна
60 м2
Житлова
40 м2
Кухня
9 м2
1 381 424 грн
Продается 2 комнатная квартира, «Финский проект», ремонту 3 года, квартира на земле, металлопластиковое остекление, внутренняя столярка дерево с витражами, потолки дерево, обои шелковые, санузел современно обли...
05.02.2026
Кімнат
2
Поверх:
1/2
Загальна
55 м2
Житлова
30 м2
Кухня
8 м2
2 460 662 грн
Продам квартиру в закрытом, охраняемом коттеджном городке с видом на море. Квартира с шикарным дорогим ремонтом, оригинальными скошенными потолками, с великолепной открытой террасой 8 кв. метр с видом на море. ...
05.02.2026
Кімнат
2
Поверх:
4/4
Загальна
58 м2
Житлова
24 м2
Кухня
26 м2
2 585 853 грн
Популярне на сайті

ОдесаОдеса

КиївКиїв











