Продається будинок
Овідіопольський район, Санжейка, Солнечная ул.
ID: 5306302
6 153 966 грн
(37 754 за м2)
Поверховість
1/1
Тип стін
цегла
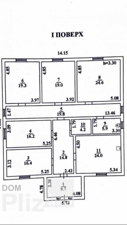
Загальна площа
163 м2
Стан
житлове
Тип нерухомості
Будинок
Продам современный дом в курортном посёлке Санжейка, хорош как для проживания, так и для ведения гостиничного бизнеса. Трёхфазное электричество. Установлены межкомнатные двери, натяжной потолок. Участок 8 соток, с документами. На участке артезианская вода, выгребная яма 10 кубов и колодец 15- кубов. К морю 200м. Прекрасное предложение для спокойной жизни на морском побережье. Посредникам, просьба не беспокоить. ID объекта: 115722
Оновлене: 17.05.2026
6 153 966 грн
(37 754 за м2)
140 000 $
(859 за м2)
Премьер Данченко, 8
посередник
Оновлене: 17.05.2026
Переглянуті
Шикарный дом на берегу моря. Дом расположен на участке 24 сотки земли, правильной прямоугольной формы, есть фруктовый цветущий сад, гараж, улица - первая линия от моря, дом находится не на оползневой зоне, до п...
17.05.2026
Поверховість:
1
Загальна
940 м2
17 143 191 грн
Дом на 10 сотках в с. Санжейка, 342 кв.м. На первом этаже кухня-столовая 40 кв.м с выходом на террасу с зоной барбекю, большой зал, 2 спальни, санузел и прихожая, Второй этаж: три просторных спальни с выходом н...
17.05.2026
Поверховість:
1
Загальна
342.2 м2
Житлова
147.4 м2
Кухня
40 м2
6 593 535 грн
Предлагается к продаже дом в с. Санжейка. Одноэтажный дом, 2 комнаты, кухня. Из ракушняка, кровля крыша, 1961 года постройки. Состояние - жилое. Участок 25 соток, выгребная яма, забор. Газ по линии, в доме свет...
17.05.2026
Поверховість:
1
Загальна
70 м2
Житлова
40 м2
Кухня
12 м2
1 758 276 грн
В продаже новый дом в с. Санжейка расположен в 500м. от моря, рядом остановка транспортная. Улица жилая. Дом построен качественно. Есть садовые деревья. Участок 15 соток, огражден каменным забором из красного к...
17.05.2026
Поверховість:
1
Загальна
350 м2
Житлова
300 м2
Кухня
35 м2
6 593 535 грн
Популярне на сайті

ОдесаОдеса

КиївКиїв


















